Installation Manual

English 9
Installation Instructions
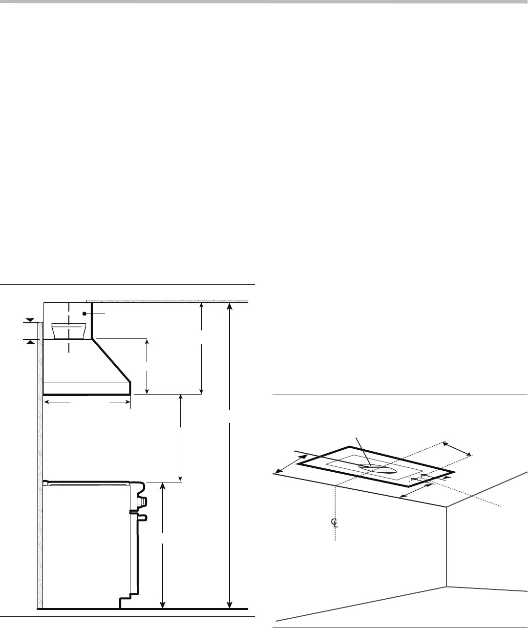
Hood Height Specifications
Figure 4 indicates a typical installation of the hood with an
optional chimney extension. Add or subtract chimney
extensions as appropriate to accommodate ceiling height
and recommended hood height.
The installation height is a minimum height of 30”
(762 mm) above the cooking surface; however, it is
necessary to follow the cooking appliance manufacturer’s
installation instructions for proper hood height.
Calculating Optional Duct Cover Height
Optional duct covers are available for purchase in 6”
(153 mm), 12” (305 mm), and 18” – 35” (457 – 889 mm)
sizes.
1. Measure height from floor to ceiling (A, Figure 4).
2. Measure height from floor to cooking surface (B,
Figure 4).
3. Measure hood mounting height from the bottom of
hood to cooking surface (C, Figure 4). Dimension must
be a minimum 30" (762 mm).
4. Calculate optional duct cover height (D, Figure 4):
D = A – (B + C).
NOTICE:
The hood could incur some damage from heat if a
THERMADOR PROFESSIONAL series range or rangetop
is operated with multiple burners at high settings under a
hood that is installed at minimum clearances while the
hood is turned off.
Wiring Preparation
Ensure wiring does not interfere with optional chimney duct
covers (where the cover touches the wall).
Ceiling Cutout for Electrical Location
The junction box is located on the top right side of the hood
(see Figure 9). Wiring should enter the back wall at least
20" (508 mm) above the bottom of the installation height.
Prepare the wire hole cutout in the ceiling as indicated in
Figure 5 (only one hole cutout is necessary for the conduit).
measurements in inches (mm)
Figure 4: Hood Height Calculation
18” (457)
Optional
Chimney
Extension
A
B
D
24” (610)
*Follow cooking
appliance manufacturer’s
recommendations
*30” (762) min.
36” (914) max.
to cooking surface.
*30” (762) min.
36” (914) max.
to cooking surface.
*30” (762) min.
36” (914) max.
to cooking surface.
C
C
C
L
C
L
C
L
6½”
(
165)
measurements in inches (mm)
Figure 5: Electrical Location
Hole to accomodate
10” (254) duct minimum
5/8” (16) dia. clearance
holes for ½” (12.7)
conduit to junction box
1 ft –1 ft ¼” (336)
6
13
/
16
”
(173)
Hood Centerline
Ba
c
k
W
a
l
l
4
7
/
8
”
(48)
7¾”
(197)










