Installation Instructions
Manuals
Brands
Thermador Manuals
Domestic Appliances
HPCN48NS
1
2
3
4
5
6
7
8
9
10
10
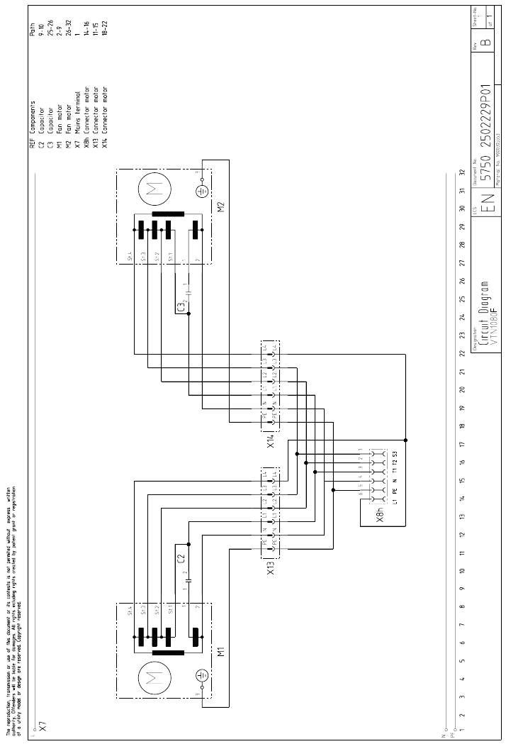
WIRE DIAGRAM
1
...
...
8
9
10
11
12
...
...
16