User manual

96
Istruzioni di installazione e collegamento
55 cm SMS
Campo di applicazione
Lavastoviglie modello: 31 . . .
Aspetti generali
• La lavastoviglie viene fornita pronta per l’allaccia-
mento, ossia con cavo di collegamento, tubo di
scarico montato e tubo di alimentazione con filtro.
• La lavastoviglie automatica non deve essere incas-
sata in nicchie in materiale infiammabile senza ul-
teriori misure.
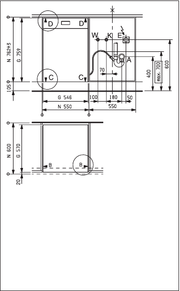
• Devono essere previsti un rubinetto dell’acqua e
una presa in base al disegno a lato.
• Devono essere osservate le disposizioni delle
aziende di fornitura elettrica e idrica locali!
1 Non capovolgere la lavastoviglie! Il dolcificato-
re incorporato contiene acqua, che può fuoriu-
scire.
Impianto dell’acqua
Alimentazione
• Pressione dell’acqua 1–10 bar (pressione idraulica)
• Deve essere previsto un rubinetto di arresto a muro
con filetto esterno G 3/4”.
• La macchina deve essere collegata con il tubo di
pressione in plastica allegato (con filtro, omologato
EN61770, 10 bar).
• Si consiglia l’installazione a muro di un filtro IRG.
Scarico
• Il tubo flessibile di scarico con un diametro interno
di 22 mm deve essere posato senza pieghe.
• Nello scarico della macchina è incorporato un di-
spositivo di non ritorno dell’aspirazione, pertanto
non sono necessari rubinetti di collegamento con
dispositivi antiriflusso.
• L’allacciamento viene effettuato preferibilmente sul
sifone dello scarico del lavello nello scomparto la-
terale della lavastoviglie.
• Il punto più alto del tubo di scarico non deve supe-
rare i 700 mm da terra.
E = presa
A = scarico
G = misura apparecchio
K = allacciamento acqua fredda
N = misura nicchia
W = allacciamento acqua calda