User manual

62
Notice de montage et de raccordement
55 cm SMS
Domaine d’application
Modèle de lave-vaisselle : 31 . . .
Généralités
• Le lave-vaisselle est livré de manière à pouvoir être
raccorder, c’est-à-dire qu’il comporte le câble de
raccordement, les tuyaux de vidange et d’alimen-
tation aves filtre.
• Le lave-vaisselle ne doit pas être encastré dans
des niches comportant des matériaux inflamma-
bles sans prendre des précautions supplémentai-
res de sécurité.
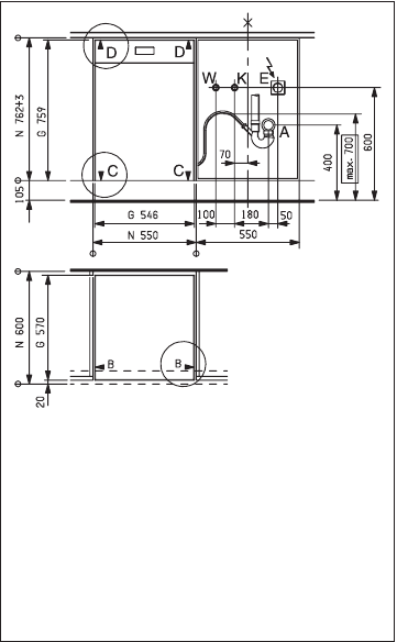
• Prévoyez un robinet d’arrivée d’eau et un prise de
courant comme indiqué dans le schéma ci-contre.
• Respectez les consignes des usines locales
d’alimentation en eau et en électricité !
1 N’inclinez pas l’appareil ! Le dispositif anti-cal-
caire incorporé contient de l’eau et celle-ci
pourrait se renverser.
Branchement de l’eau
Arrivée d’eau
• Pression de l’eau 1–10 bar (pression eau courante)
• Lors du montage, prévoyez un robinet de réglage
avec un diamètre de sortie G 3/4”
• L‘appareil doit être raccordé seulement avec le
tuyeau en matière plastique résistant à la pression
(avec filtre, homologué EN61770, 10 bar).
• Il est recommandé d’installer un filtre IRG.
Vidange
• Le tuyau de vidange flexible d’un diamètre interne
22 mm doit être installé sans pli.
• Le dispositif de vidange de l’appareil est équipé
d’un inhibiteur de siphonnage inverse, ce qui évite
d’avoir à installer des armatures de raccordement
avec inhibiteur de refoulement.
• Il est recommandé d’effectuer le raccordement sur
le syphon de l’évacuation du lavabo au niveau du
compartiment latéral de l’appareil.
• La hauteur maximale du tuyau de vidange ne doit
pas excéder 700 mm au-dessus du sol.
E = Prise de courant
A = Vidange
G = Dimension de l’appareil
K = Raccordement d’eau froide
N = Dimension de la niche
W = Raccordement eau chaude