User manual

28
Aufstell- und Anschlussanweisung
55 cm SMS
Geltungsbereich
Geschirrspülmaschinen Typ: 31 . . .
Allgemeines
• Der Geschirrspüler wird anschlussfertig, d.h. mit
Anschlusskabel, montiertem Ablaufschlauch und
Zulaufschlauch mit Sieb geliefert.
• Der Geschirrspülautomat darf ohne zusätzliche
Massnahmen in Nischen aus brennbarem Material
eingebaut werden.
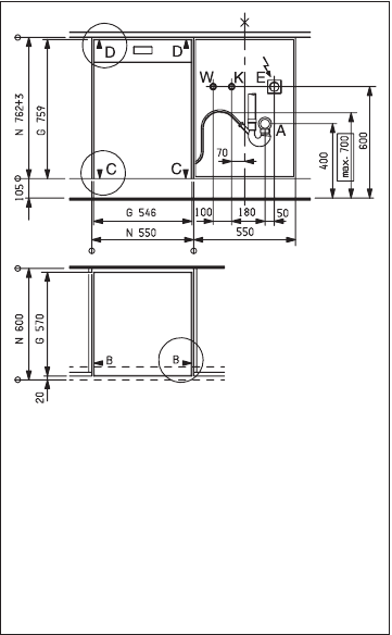
• Wasserhahn und Steckdose gemäss nebenstehen-
der Skizze vorsehen.
• Die Vorschriften der örtlichen Wasser- und
Elektrizitätswerke müssen beachtet werden!
1 Apparat nicht umlegen! Der eingebaute Ent-
härtungsapparat enthält Wasser, welches aus-
laufen kann.
Wasserinstallation
Zulauf
• Wasserdruck: 1–10 bar (Fliessdruck)
• Bauseits ist ein Abstellhahn mit Abgang G 3/4”
vorzusehen.
• Das Gerät muss über den mitgelieferten Kunst-
stoffdruckschlauch angeschlossen werden (mit
Sieb, nach EN61770, 10 bar).
• Ein bauseitiger Einbau eines IRG-Filters wird emp-
fohlen.
Ablauf
• Der flexible Ablaufschlauch mit einem Innendurch-
messer von 22 mm ist knickfrei zu verlegen.
• Im Ablauf der Maschine ist eine Rücksaugverhin-
derung eingebaut, weshalb Anschlussarmaturen
mit Rückflussverhinderer nicht erforderlich sind.
E = Steckdose
A = Ablauf
G = Gerätemass
K = Kaltwasseranschluss
N = Nischenmass
W = Warmwasseranschluss