Instruction Manual

2-7
Percent Oxygen Analyzer Operational Theory 2
Teledyne Analytical Instruments
mizes residual gas pockets that can interfere with very low level oxygen
analysis.
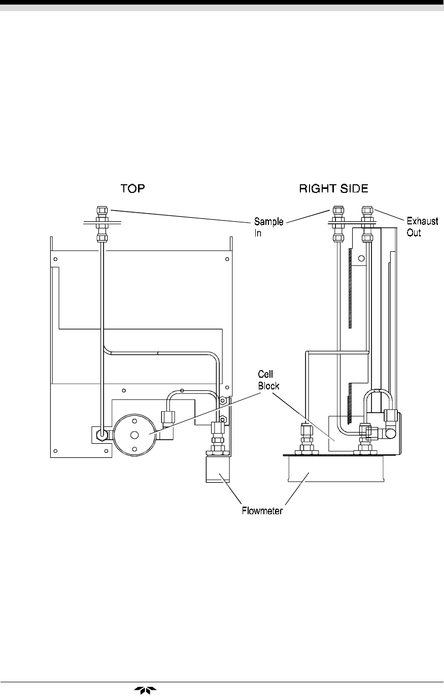
The sample system for the standard instrument incorporates ¼ inch tube
fittings for sample inlet and outlet connections at the rear panel. For metric
system installations, 6 mm adapters are supplied with each instrument. The
sample or calibration gas flow through the system is monitored by a flow-
meter downstream from the cell. Figure 2-4 shows the piping layout for the
standard model.
Figure 2-4: Piping Layout and Flow Diagram for Standard Model
Figure 2-5 is the flow diagram for the sampling system. In the standard
instrument, calibration gases (zero and span) can be connected directly to the
Sample In port by teeing to the port with appropriate valves. The shaded
portion of the diagram shows the components added when the –C option is
ordered. The valving is installed inside the 3000PA-C enclosure and is
regulated by the instrument's internal electronics.