Operation Manual
Table Of Contents
- Page 1
- Page 2
- Page 3
- Page 4
- Page 5
- Page 6
- Page 7
- Page 8
- Page 9
- Page 10
- Page 11
- Page 12
- Page 13
- Page 14
- Page 15
- Page 16
- Page 17
- Page 18
- Page 19
- Page 20
- Page 21
- Page 22
- 52010886 ingilizce.pdf
- A4-A5.pdf
- r.pdf
- A4-A5.pdf

TEIL 3: VORBEREITUNGEN FÜR INSTALLATION UND GEBRAUCH
Dieser moderne, funktionale und praktische Ofen wurde mit Teilen und Materialien höchster Güte
hergestellt und wird Ihre Ansprüche in jeder Hinsicht erfüllen. Vergessen Sie nicht, diese Anleitung
aufmerksam durchzulesen, damit Sie gleich zu Anfang richtig und sicher mit dem Gerät arbeiten
können und es auch in Zukunft nicht zu Problemen kommt. In den nachstehenden Informationen
finden Sie bestimmte Regeln, die wichtig für richtige Aufstellung und Wartungsarbeiten sind. Diese
Informationen sollten (insbesondere vom Installateur) mit besonderer Aufmerksamkeit gelesen
werden.
Wenden Sie sich zur Installation Ihres Ofens an den autorisierten Kundendienst!
3.1 DER RICHTIGE PLATZ FÜR IHREN OFEN
Bei der Auswahl des richtigen Aufstellungsortes für Ihren Ofen müssen einige Punkte beachtet
werden. Halten Sie sich in jedem Fall an unsere nachstehenden Empfehlungen, damit es später
nicht zu Problemen oder gefährlichen Situationen kommt!
Bei der Auswahl des richtigen Platzes für Ihren Ofen sollten Sie darauf achten, dass sich keine
entflammbaren oder explosiven Materialien in nächster Nähe befinden; dies können Vorhänge,
ölige Tücher und ähnliche Materialien sein, die schnell Feuer fangen.
Die Ihren Ofen umgebenden Möbel müssen aus hitzebeständigen Materialien bestehen, die auch
Temperaturen von mehr als 50 °C aushalten.
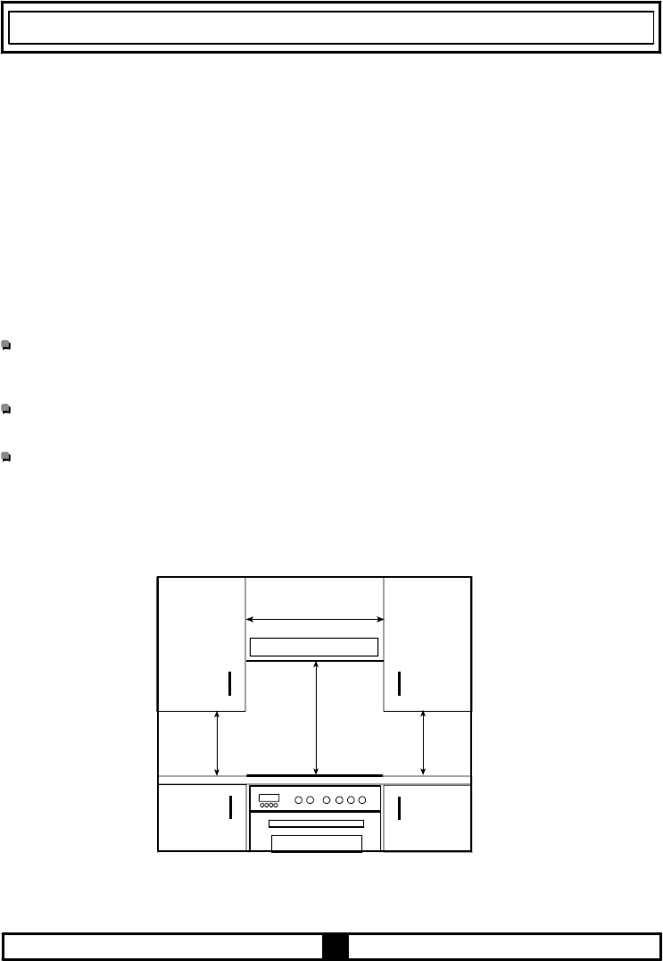
In Abbildung 1 finden Sie eine Darstellung der erforderlichen Gegebenheiten oder Änderungen
hinsichtlich Wandschränken und Abzugshauben sowie der nötigen Minimalabstände zum Ofen und
seinen Flächen. Demzufolge sollte die Abzugshaube mit einem minimalen Abstand von 65 cm von
der Oberfläche des Kochfeldes angebracht werden. Ohne Abzugshaube sollte ein Abstand von
mindestens 70 cm eingehalten werden.
Min. 60 cm
ABZUGSHAUB
Abbildung 1
Min. 42 cm.
Min. 65 cm (mit
Abzugshaube)
Min. 70 cm (ohne
Haube)
Min. 42 cm.
6










