Installation Instruction
Manuals
Brands
Tech Lighting Manuals
Flush Mounts
1 - Light 8.5" Simple Drum Flush Mount
1
2
3
4
3
3B
2
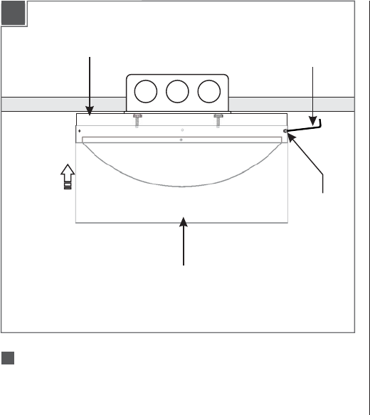
Align the glass shade with the fixture and install the
three large set screws using the provided large Allen
wrench.
2
FIXTURE
LARGE ALLEN
WRENCH
LARGE
SET SCREW
GLASS SHADE
1
2
3
4