Manual

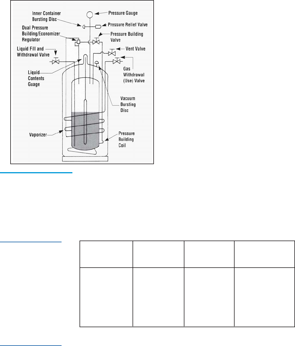
inner container is vaporized in a heat exchanger which
is inside the outer casing. The expanding gas is fed into
the upper section of the container to build pressure. The
resulting pressure will drive either the liquid or gas deliv-
ery system.
Pressure Building is not normally required unless con-
tainer pressure drops below the gas output pressure de-
sired. If, for example, the container pressure gauge reads
75 psig (5 bar/517 kPa), and your gas pressure re-
quirement is 100 psig (6.9 bar/690 kPa), the pressure
building valve may be opened to build container pres-
sure to 125 psig (8.6 bar/862 kPa).
Economizer – An economizer circuit withdraws gas pref-
erentially from the head space over the liquid in the con-
tainer – gas that would otherwise be lost to venting. Ex-
cess pressure in the head space of the container is
relieved by allowing gas to flow from this area directly to
the USE valve outlet while gas is being withdrawn from
the container; yet normal operating pressure is preserved
to ensure uninterrupted product delivery. The econo-
mizer is automatic and requires no operator attention.
The USE Valve - This valve controls the gas outlet that
allows product withdrawal through the internal vaporizer. It has the CGA connection that
matches the gas service for which the container is configured.
The LIQUID Valve – Liquid product is added or withdrawn from the container through
the connection controlled by this valve. It has the CGA fitting that is required for liquid
line connections. The valve is open for fill or liquid withdrawal after connecting a transfer
hose with compatible fittings to the LIQUID line connection.
RELIEF VALVES AND RECOMMENDED REGULATOR SETTINGS
Relief Pressure Normal
Valve Building Economizer Operating
Setting Setting Setting Range
22 psig N/A N/A 0-22 psig
1.5 bar N/A N/A 0-1.5 bar
152 kPa N/A N/A 0-152 kPa
230 psig 125 psig 145 psig 75-175 psig
16 bar 8.6 bar 10 bar 5-12 bar
1586 kPa 862 kPa 1000 kPa 517-1207 kPa
The PRESSURE BUILDING Valve – This valve isolates the liquid in the bottom of the
container to the Dual Pressure Building/Economizer Regulator. This valve must
be open to build pressure inside the container.
NOTE:
The economizer and
pressure building
functions are
controlled by a single
dual action regulator.
The pressure delta
between the pressure
building setpoint and
the economizer
setpoint is
approximately 20 psig
(1.4 bar/138 kPa). This
delta cannot be
altered.
XL-45/XL-50-XL-55
Flow Diagram