Specification Sheet

Mobius T-M50
U
P
C
®
06-021-2010
HT W D WT Volt Amp Flue Intake Connections
(Hot/Cold/Gas)
25.3” 24.8” 11.8” 112 lbs. 120 1.48 5” O.D.* 5” O.D. (opt.) 1” NPT
Max BTU/h Min BTU/h Thermal Eff. Min Press Max. Press
380,000 15,000 80.2% 5.0” W.C. 10.5” W.C.
380,000 15,000 82.4% 8.0” W.C. 14.0” W.C.
Input
NG
LP
Input
GPM Water PSI Coil Cap
0.5 - 14.5** 15 - 150 PSI*** ≈0.32 Gallons
Clearances Top Bottom Front Back Sides
Indoor 12” 12“ 24” 0.5“ 2”
Outdoor 36“ 12” 24“ 0.5” 2”
* Category III Required **Current numbers based on factory testing, 0.4 GPM Required for Continuous Fire After initial Ignition.
***Pressure Only Relief Valve Requires (Min. 380,000 BTUs. 150 PSI). Min 40 PSI or above recommended for maximum ow.
Specication
Mobius water heater(s) shall be Model T-M50 as manufactured by Takagi Industrial Company, Inc. The Mobius water heater(s) shall be a copper coil
integral n and tube construction with quick release brass or bronze waterways. Heater(s) will be factory assembled and tested.
The heater shall be vented with 5” Stainless steel Category III vent pipe a distance not to exceed 50’ (equivalent) feet terminating vertically or horizontially
as prescribed. Intake air with optional direct vent kit may be of such material as PVC not to exceed a total of 50’ (equivalent).
The heater(s) shall be controlled by onboard solid state printed circuit board monitoring incoming and outgoing temperatures with factory installed
thermistors, sensing and controlling ow rate to set point temperature with control both air and gas mixture inputs to maintain thermal combustion
eciency. Unit also consists of ground fault interrupter, inline fusing, spark ignition and sensor system, aluminized stainless steel burners, air-fuel ration
rod, Hi limit switch, modulating and proportional gas valves, freeze protection sensor and heating block and overhead cut-o fuses.
The water heater(s) shall be CSA listed, exceeds the energy eciency requirements of ASHRAE 90. 1b-1992 and listed by SCAQMD rule 11 46.2 Low NOx.
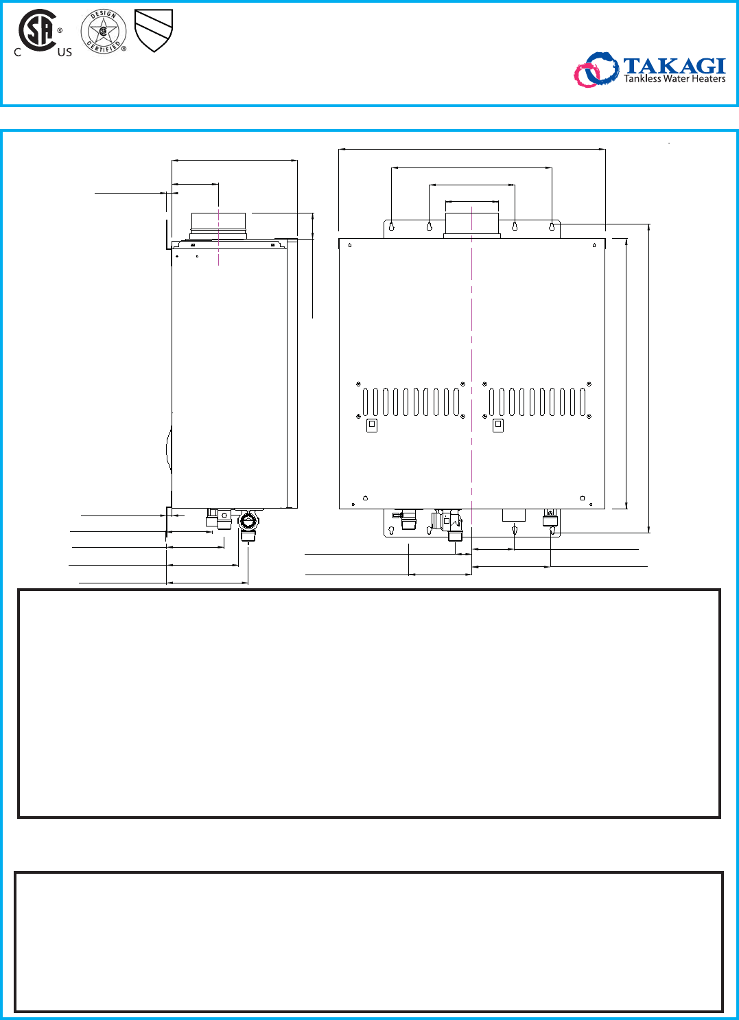
T-M50 :
8" (203mm)
5" (127mm)
24-7/8" (632.9mm)
28-7/8" (734mm)
25-1/4" (642mm)
2-1/2" (62.1mm)
1/2" (11.9mm)
12-1/4" (311.5mm)
5-7/8" (150mm) HOT
4-7/8" (122.9mm)
4" (100mm) 120V
7-3/8" (186mm)GAS
1-5/8" (40mm) COLD
15" (381mm)
1/2" (12.5mm)
7-5/8" (194.3mm) COLD
5
-3/8" (137.3mm) HOT
4-3/8" (110.8mm) GAS
6-3/4" (171.3mm) 120V
Takagi USA reserves the right to change or disconnue the design, drawing and/or specificaon of its products without noce at anyme.


