Specification

The Swan Corporation
•
515 Olive Street, Suite 1800
•
St. Louis, MO 63101
•
p (800)325-7008
•
f (314)231-8165
•
swanstone.com98 The Swan Corporation
•
515 Olive Street, Suite 1800
•
St. Louis, MO 63101
•
p (800)325-7008
•
f (314)231-8165
•
swanstone.com 99
T U B & S H OW E R
Double Threshold & Neo Angle
With Fit-Flo Drain
SWANSTONE SHOWER FLOORS
WARRANTY
Limited Lifetime – Residential
Limited 10-year – Commercial
Manufactured from Swanstone solid surface
(see page 2 for detailed information)
F E AT U R E S
• Reinforced solid surface means
color and texture run all the way
through and cannot wear away
• Will not mold or mildew, no
grout to clean
• Coordinates with Swanstone
shower and bath systems
• Pebbled, slip-resistant surface
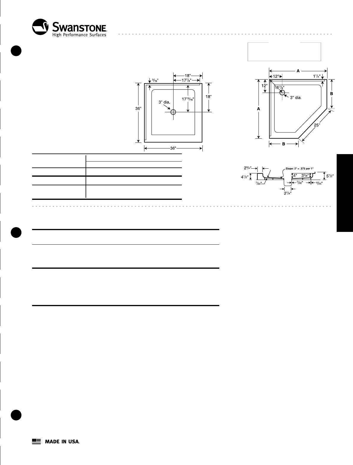
Nominal Rough-In Dimensions
Model Size 36" 36" 18" 18"
SS-36DTF 36" x 36" 36-1/16" 36-1/16" 18-3/16" 18-3/16"
A B 25" 12"
SS-36NEO 36" x 36" 36-1/8" 18-3/16" 25-1/8" 12-3/16"
SS-38NEO 38" x 38" 38-1/8" 20-3/16" 25-1/8" 12-3/16"
SS-36DTF
Double
Threshold
S P E C I F I C AT I O N S
Double Threshold & Neo Angle Shower Floors With Fit-Flo Drain
Ship Ship Carton
Model Part Nominal Size Dimensions Wt. Lb. UPS Dims. In. Cu. Ft.
Double Threshold Shower Floor
SS-36DTF SD03636MD 36" D x 36" W DTF 44 – 42 x 41 x 10 10
(914 mm x 914 mm)
Neo Angle Shower Floors
SS-36NEO SN00036MD 36" D x 36" W 40 – 42 x 42 x 10 11
(914 mm x 914 mm)
SS-38NEO SN00038MD 38" D x 38" W 44 – 44 x 43 x 10 11
(965 mm x 965 mm)
Kit Includes: One code approved compression molded Swanstone floor with
molded-in Fit-Flo drain and complete installation instructions.
Packaging: Each floor packed in a rectangular carton.
S U P P O R T D O C U M E N T S
Installation instructions available on line at www.swanstone.com
S TA N D A R D S A N D R AT I N G S
Class 1A fire rating
American National Standard Institute—ANSI Z124.1.2–2005
International Association of Plumbing and Mechanical Officials (IAPMO)—listed
cUPC listed—Certified to CSA Standard B45 by IAPMO
American Society for Testing and Materials
National Electrical Manufacturers Association
National Sanitation Foundation-NSF Splash Zone, -NSF Food Zone
For a complete list of tests and results see the Technical Data Sheet – page 131.
Recommended for high use traffic areas and commercial surfaces
IMPORTANT: Rough-in
dimensions are
provided for reference
only. You must measure
the actual shower floor
and check local building
code requirements
before construction
of the stud wall.
Model A B
SS-36NEO 36" 18"
SS-38NEO 38" 20"
M A I N T E N A N C E A N D
C L E A N I N G I N F O R M AT I O N
Everyday cleaning with liquid cleaners such
as Dow or Lysol foaming bubbles, Top Job,
Mr. Clean or similar type products with a
sponge or Mr. Clean Magic Eraser. To remove
hard water stains or mineral build-up, scale
removers such as Lime Away, Rust-out or Whink
are recommended. Abrasive cleaners are not
recommended on shower bases because they are
designed with high sheen areas to help prevent
soap scum build up. Prolonged scrubbing will
dull the surface over time and promote build-up
and soap scum.
Do not
use “leave on” cleaning
products such as the Automatic Shower Cleaner.
Prolonged contact with harsh chemicals could
have an adverse reactive over time and discolor
your surfaces.
Do not
use cleaning agents that
caution use on acrylic, polyester or plastics.
• White (010)
• Bone (037)
• Bisque (018)
• Almond Galaxy (046)
• Arctic Granite (035)
• Barley (091)
• Bermuda Sand (040)
• Gray Granite (042)
• Green Pasture (095)
• Sierra (094)
• Tahiti Blue (056)
• Tahiti Desert (050)
• Tahiti Evergreen (057)
• Tahiti Gray (053)
• Tahiti Ivory (059)
• Tahiti Matrix (058)
• Tahiti Rose (052)
• Tahiti Sand (051)
• Tahiti Terra (055)
• Tahiti White (011)
• Cornflower (063)
• Ironweed (061)
• Night Sky (012)
• Purple Sage (064)
• Wild Indigo (022)
• Winter Wheat (060)
• Indian Grass (071)
• Pebble (072)
• Seafoam (074)
• Glacier (121)
• Prairie (122)
• Acorn (123)
• Canyon (124)
• Cloud White (125)
• Cloud Bone (126)
• Baby’s Breath (168)
• Caraway Seed (169)
CO L O R S
(See inside back cover for color sample.)
Nominal Rough-In Dimensions
Model Size 60" 32" 8" 15"
SR-3260L* 32" x 60" 60-3/8" 32-3/16" 8-3/16" 15-3/16"
SR-3260R** 32" x 60" 60-3/8" 32-3/16" 8-3/16" 15-3/16"
*Retrofit (left side drain) **Retrofit (right side drain)
F E AT U R E S
• Reinforced solid surface means color and texture
run all the way through and cannot wear away
• Will not mold or mildew, no grout to clean
• Coordinates with Swanstone shower and bath systems
• Pebbled, slip-resistant surface
• Without expensive plumbing re-work, this floor can be installed
in the same area once occupied by a standard bath tub.
Retrofit Shower Floors
With Fit-Flo Drain
SWANSTONE SHOWER FLOORS
WARRANTY
Limited Lifetime – Residential
Limited 10-year – Commercial
Manufactured from Swanstone solid surface
(see page 2 for detailed information)
S P E C I F I C AT I O N S
Retrofit Shower Floors With Fit-Flo Drain
Ship Ship Carton
Model Part Nominal Size Dimensions Wt. Lb. UPS Dims. In. Cu. Ft.
SR-3260L SR03260LM 32" D x 60" W
(Retrofit left drain)
59 – 66 x 37 x 10 15
SR-3260R SR03260RM 32" D x 60" W
(Retrofit right drain)
59 – 66 x 37 x 10 15
Kit Includes: One code approved compression molded Swanstone floor with
molded-in Fit-Flo drain and complete installation instructions.
Packaging: Each floor packed in a rectangular carton.
S U P P O R T D O C U M E N T S
Installation instructions available on line at www.swanstone.com
S TA N D A R D S A N D R AT I N G S
Class 1A fire rating
American National Standard Institute—ANSI Z124.1.2–2005
International Association of Plumbing and Mechanical Officials (IAPMO)—listed
cUPC listed—Certified to CSA Standard B45 by IAPMO
American Society for Testing and Materials
National Electrical Manufacturers Association
National Sanitation Foundation-NSF Splash Zone, -NSF Food Zone
For a complete list of tests and results see the Technical Data Sheet – page 131.
Recommended for high use traffic areas
and commercial surfaces
IMPORTANT: Rough-in dimensions are
provided for reference only. You must
measure the actual shower floor and
check local building code requirements
before construction of the stud wall.
Retrofit Shower Floor
left side drain
Retrofit Shower Floor
right side drain
M A I N T E N A N C E A N D
C L E A N I N G I N F O R M AT I O N
Everyday cleaning with liquid cleaners such
as Dow or Lysol foaming bubbles, Top Job,
Mr. Clean or similar type products with a
sponge or Mr. Clean Magic Eraser. To remove
hard water stains or mineral build-up, scale
removers such as Lime Away, Rust-out or Whink
are recommended. Abrasive cleaners are not
recommended on shower bases because they are
designed with high sheen areas to help prevent
soap scum build up. Prolonged scrubbing will
dull the surface over time and promote build-up
and soap scum.
Do not
use “leave on” cleaning
products such as the Automatic Shower Cleaner.
Prolonged contact with harsh chemicals could
have an adverse reactive over time and discolor
your surfaces.
Do not
use cleaning agents that
caution use on acrylic, polyester or plastics.
• White (010)
• Bone (037)
• Bisque (018)
• Almond Galaxy (046)
• Arctic Granite (035)
• Barley (091)
• Bermuda Sand (040)
• Gray Granite (042)
• Green Pasture (095)
• Sierra (094)
• Tahiti Blue (056)
• Tahiti Desert (050)
• Tahiti Evergreen (057)
• Tahiti Gray (053)
• Tahiti Ivory (059)
• Tahiti Matrix (058)
• Tahiti Rose (052)
• Tahiti Sand (051)
• Tahiti Terra (055)
• Tahiti White (011)
• Cornflower (063)
• Ironweed (061)
• Night Sky (012)
• Purple Sage (064)
• Wild Indigo (022)
• Winter Wheat (060)
• Indian Grass (071)
• Pebble (072)
• Seafoam (074)
• Glacier (121)
• Prairie (122)
• Acorn (123)
• Canyon (124)
• Cloud White (125)
• Cloud Bone (126)
• Baby’s Breath (168)
• Caraway Seed (169)
CO L O R S
(See inside back cover for color sample.)

