Installation Guide

Stud Wall Construction
The key to a good Alcove Wall Kit installation is proper
fit within the stud pocket walls. Remember these
important points to ensure a smooth installation.
• Completely read and understand this manual and
the appropriate bathtub installation manual prior to
beginning the project.
• Measure the actual bathtub and alcove wall panels
and use these dimensions to build the stud pocket
walls to fit. Up to a 3/16” gap between the stud
wall and the Swanstone bathtub and/or alcove wall
attachment flange is acceptable.
Note: The bottom of the alcove wall panels are
designed to fit INSIDE the attachment flange on the
bathtub threshold.
A. Alcove side wall attachment flanges extend out past
the front edge of the bathtub. Make sure to
construct the stud pocket walls so that multiple studs
are installed (ganged) at the front threshold to
provide backing for filler boards and the vertical
attachment flange on each alcove side panel.
B. The alcove wall panels feature a three-dimensional
design. If shower doors will be installed, solid
3/4” thick filler boards MUST be attached to studs to
fill in the space between the alcove side panels, and
front threshold studs, prior to panel installation.
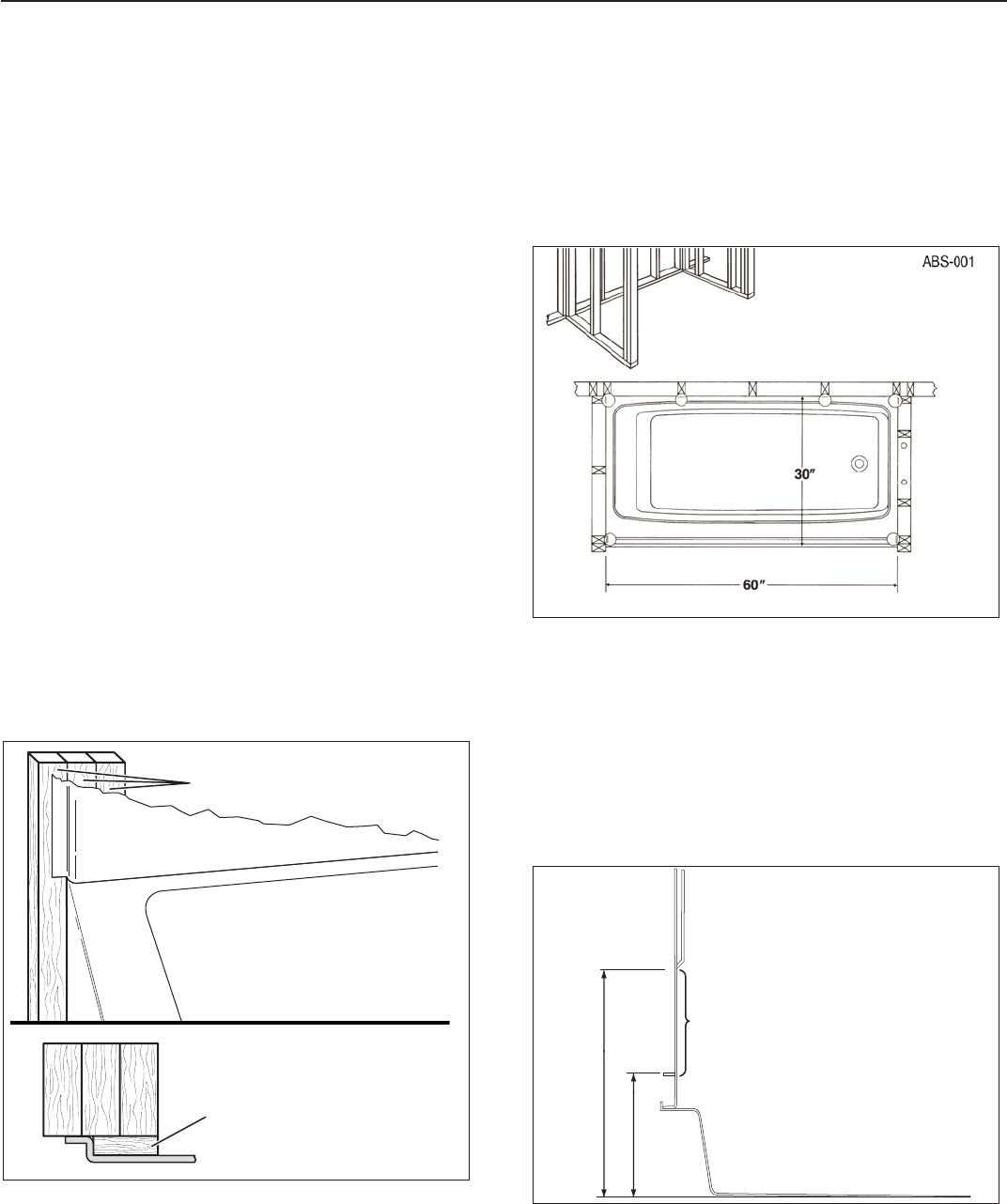
1. Build a stud pocket wall structure to the dimensions
for The Swan Corporation BA-3060 Bathtub or other
appropriate bathtub. Make sure all framing is plumb
and square.
Note: For more information on building the alcove
bathtub wall pocket, refer to The Swan Corporation
BT-3060 Bathtub Installation Manual.
2. Trial fit the bathtub in the stud pocket making sure
that stud pocket walls fit the bathtub flange properly.
3. Rough-in all plumbing supply, overflow, and drain
lines in accordance with the plumbing
manufacturer’s instructions and all local building
codes. The filler spout and valve should be located
within the vertical area shown in the cut-a-way
drawing.
ABS-008
20”
34-1/2”
Locate
valve &
filler spout
within
this area.
Alcove Side
Panel
Bathtub
ABS-018c
Side
Panel
Multiple Studs
Bathtub
Ledge
A
B
Top View
Looking Down
3/4” Filler Board for
Shower Door Installation
The Swan Corporation 10 800-325-7008
Bathtub Alcove Installation Procedure










