Installation Guide

Stud Wall Construction
The key to a good Alcove Wall Kit installation is proper
fit within shower floor and the stud pocket walls.
Remember these important points to ensure a smooth
installation.
• Completely read and understand this manual and
the appropriate shower floor installation manual
prior to beginning the project.
• Measure the actual shower floor and alcove wall
panels and use these dimensions to build the stud
pocket walls to fit. Up to a 3/16” gap between the
stud wall and the Swanstone shower floor and/or
alcove wall attachment flange is acceptable.
Note: The bottom of the alcove wall panels are
designed to fit INSIDE the attachment flange on the
shower floor threshold.
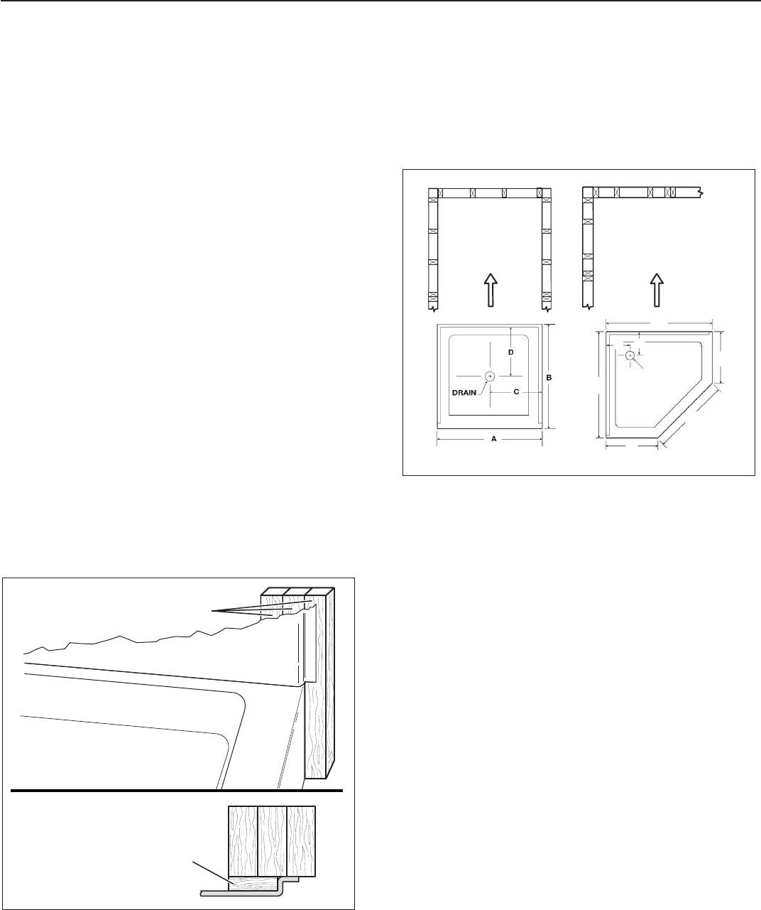
A. Alcove side wall attachment flanges extend out past
the front edge of the shower floor. Make sure to
construct the stud pocket walls so that multiple studs
are installed (ganged) at the front threshold to
provide backing for filler boards and the vertical
attachment flange on each alcove side panel.
B. The alcove wall panels feature a three-dimensional
design. If shower doors will be installed, solid
3/4” thick filler boards MUST be attached to studs to
fill in the space between the alcove side panels, and
front threshold studs, prior to panel installation.
1. Build a stud pocket wall structure to the dimensions
for The Swan Corporation shower floor. All framing
must be plumb and square.
Note: For more information on building the alcove
shower wall pocket, refer to the appropriate Shower
Floor Installation Manual.
2. Trial fit the shower floor in the stud pocket making
sure that stud pocket walls fit the shower floor
flange properly.
3. Rough in the plumbing supply and drain lines in
accordance with the plumbing manufacturer’s
instructions and all local building codes.
ABS-023
A
A
B
C
B
D
D
DRAIN
Shower
Floor
ABS-028a
Side
Panel
Multiple Studs
A
B
Top View
Looking Down
3/4” Filler Board for
Shower Door Installation
800-325-7008 17 The Swan Corporation
Shower Alcove Installation Procedure










