Specification

THIS DRAWING IS INTENDED FOR DESCRIPTIVE PURPOSES ONLY. AND THE RIGHT IS RESERVED TO DEVIATE FROM ANY OF THE DETAILS SHOWN HEREON.
COPYRIGHT THOMAS & BETTS CORPORATION. ALL RIGHTS RESERVED. PROPRIETARY AND CONFIDENTIAL.
www.tnb.com
GENERAL NOTES
REVISIONS
DESCRIPTION:
ORIGINAL PROJECT NO / ( ERN NO )
SHEET NO: REV. NO: DRAWING NO:
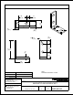
1. ALL DIMENSIONS ARE FOR
REFERENCE ONLY.
2. DIMENSIONS IN BRACKETS [ ]
ARE IN METRIC UNITS.
4.11
[104,5]
3.50
[88,9]
1.61
[41]
1.13
[28,6]
.81
[20,6]
1.88
[47,6]
.81
[20,6]
1.88
[47,6]
(.81 )
[20,7]
(1.43 )
[36,3]
.24
[6]
4X .56
[14,3]
1 OF 1 0 WSD-001661
-
SEE ERN ( *** )
FOR APPROVAL SIGNATURES
& RELEASE DATE.
PROJECT NO: ***
NOTE:
MAGNETS ARE NICKEL-PLATED
MAGNETIC ANGLE BRACKET
005D000780 / ( 2017362 )
CATALOG NO. BRACKET FINISH
AB205M GOLD-GALV
AB205M EG SILVER-GALV

Summary of content (1 pages)