User's Manual

wolfappliance.com
|
17
RANGES / RANGETOPSOVENS / WARMING DRAWERS OUTDOOR GRILLS VENTILATIONCOOKTOPS
WOLF BUILT-IN OVENS
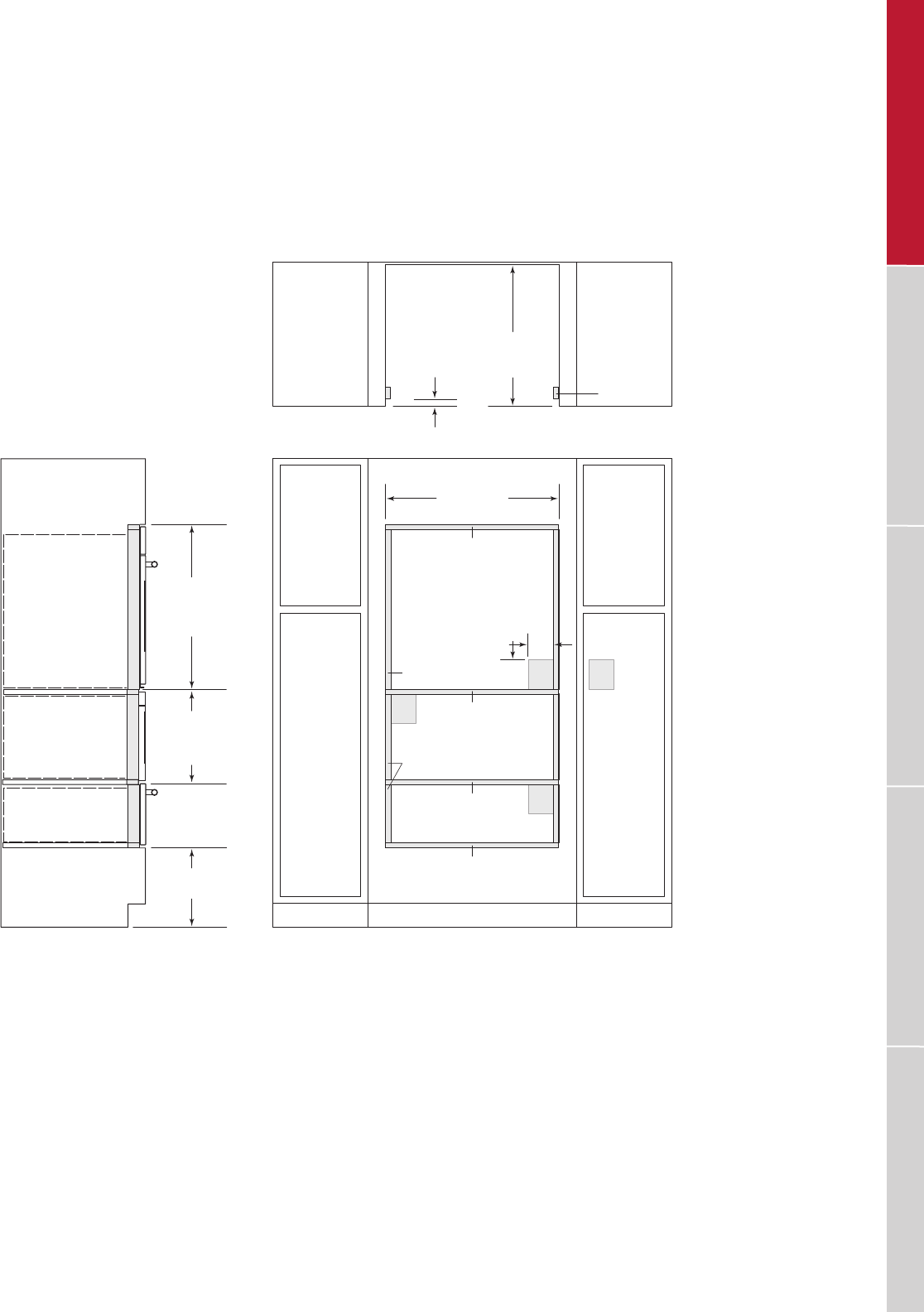
30" E Series Single Oven
FLUSH INSET INSTALLATION WITH DRAWER MICROWAVE AND WARMING DRAWER
E
E
E
28
1
/8"
(714)
FLUSH INSET
HEIGHT
15
3
/8"
(391)
FLUSH INSET
HEIGHT
10
5
/8"
(270)
FLUSH INSET
HEIGHT
E SERIES OVEN
30
3
/8" (772)
FLUSH INSET WIDTH
DRAWER MICROWAVE
WARMING DRAWER
7
/
8
"
(22)
5
/8" (16)
1" (25)
9
/16" (14)
25" (635)
FLUSH INSET
DEPTH
1"
(25)
OR
1
1
/
4
"
(32)**
TOP VIEW
FINISHED
CLEATS*
*W
ill be visible and should be finished to match cabinetry.
**1"
(25) for professional and transitional models and 1
1
/4" (32) for contemporary model.
NOTE: Minimum base support for E series oven 250 lbs
(113 kg).
Location of electrical supply within E series oven opening may require additional cabinet depth
.
Dashed line represents profile of unit
.
FRONT VIEW
SIDE
VIEW
10" (256)
TYPICAL
1" (25)
E
5"
(127)
4"
(102)
1" (25)










