User's Manual

Wolf Gas Ranges 79
wolfappliance.com/specs
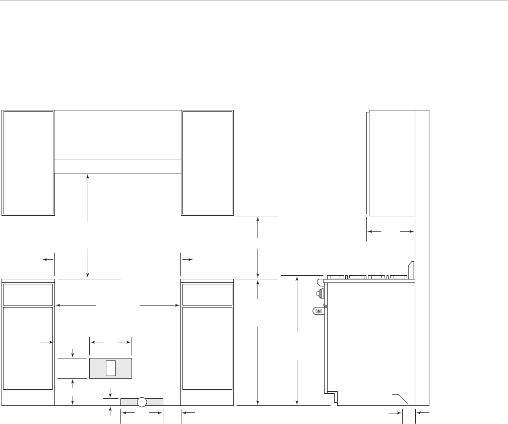
36
1
/4" (921)
OPENING WIDTH
30" (762) TO 36" (914)
TO BOTTOM OF
VENTILATION HOOD**
*Minimum clearance from rough opening to combustible materials up to 18" (457) above countertop.
**36"
(914) minimum clearance, 44" (1118) for charbroiler, from countertop to combustible materials without ventilation hood.
NOTE: For island installations, 12"
(305) minimum clearance from back of range to combustible rear wall above countertop.
6" (152) TO
COMBUSTIBLE*
6" (152) TO
COMBUSTIBLE*
18" (457) min
36" (914)
FLOOR TO
COUNTERTOP
12"
(305)
10" (254)
12"
(305)
5"
(127)
G
2" (51)
37" (940)
TO COOKING
SURFACE
13" (330)
max
3"
(76)
LOCATION OF GAS AND
ELECTRICAL EXTENDS
ON FLOOR
SIDE
CABINET
E
7
3
/4" (197)
5
3
/4"
(146)
FRONT VIEW SIDE VIEW
36" (914) Gas Range
INSTALLATION









