Installation Guide

14 | Sub-Zero Customer Care 800.222.7820
INSTALACIÓN
DESVIACIÓN DEL FILTRO DE AGUA
Si no va a utilizar el sistema de ltrado, puede colocarlo en
el modo de desviación al quitar el ltro de agua.
Para quitar el ltro de agua:
1 Para acceder al ltro de agua, gire la parte inferior de la
rejilla hacia arriba.
2 Para extraer el ltro, gírelo un cuarto en sentido opuesto
de las manecillas del reloj y jálelo. Consulte la siguiente
ilustración.
Extracción del ltro de agua
FILTRO DE AGUA
Finalización
Instale el conjunto de la rejilla y verique que se ajuste
adecuadamente. Vuelva a conectar el cable de red.
Consulte la página 6. Una el cable de red a la rejilla con los
sujetacables que vienen incluidos.
Vuelva a instalar la bandeja de drenaje y compruebe que
esté bien puesta.
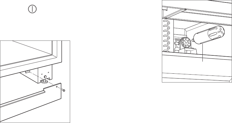
Instale el zócalo y sujételo a los soportes con los tornillos
dentro de cada una de las bases rodantes. Consulte la
siguiente ilustración. El zócalo debe ser desmontable para
sacarlo cuando sea necesario hacerle servicio a la máquina.
El suelo no debe interferir al desmontarlo.
Instale las cubiertas de las patas.
Para la puesta en marcha inicial, pulse y mantenga presionado
el botón de
POWER (encendido) en cualquiera de las
pantallas táctiles externas, situadas en la rejilla.
Instalación del zócalo










