quick guide

48"PROREFRIGERATOR/FREEZER
PRODUCTSPECIFICATIONS
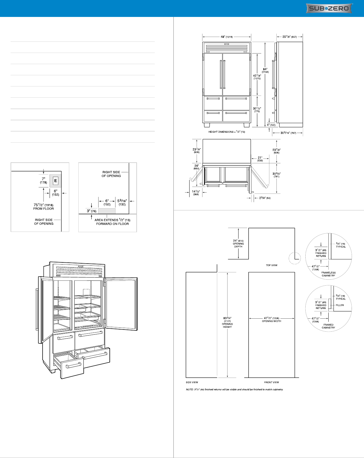
Model PRO4850
Dimensions 48"Wx84"Hx24"D
DoorClearance 303/4"
DrawerClearance 141/2"
Weight 880lbs
RefrigeratorCapacity 18.7cu.ft.
FreezerCapacity 11.7cu.ft.
ElectricalSupply 115VAC,60Hz
ElectricalService 15ampdedicatedcircuit
Receptacle 3-pronggrounding-type
ELECTRICAL PLUMBING
NOTE:Dimensionsinparenthesisareinmillimetersunlessotherwisespecified
INTERIORVIEW
Thisillustrationisintendedforinteriorreferenceonlyandmaynotrepresentthe
exteriorofthemodelbeingspecified.
DIMENSIONS
STANDARDINSTALLATION
Specificationsaresubjecttochangewithoutnotice.ThisinformationwasgeneratedonMay8,2019.Verifyspecificationspriortofinalizingyourcabinetry/enclosures.


