User's Manual

90
|
Wolf Customer Care 800.222.7820
E
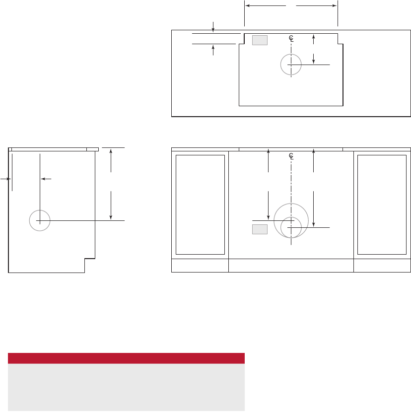
FRONT VIEWSIDE VIEW
*6" (152) back from countertop cut-out when internal blower is rear mounted.
NOTE: Internal blower 6"
(152) round, side, rear or bottom discharge. In-line and remote blower 10" (254) round, rear discharge.
Centerline indicates center of downdraft cut-out.
21
1
/4"
(540)
21
1
/4"
(540)
8
1
/4"
(210)*
COOKTOP CUT-OUT
2
11
/16" (68)
TOP VIEW
23
3
/8"
(594)
8
1
/4" (210)*
W
DOWNDRAFT
CUT-OUT WIDTH
E
Downdraft
INSTALLATION WITH COOKTOP
CUT-OUT WIDTH
MODEL W
DD30 27
1
/2" (699)
DD36 33
1
/2" (851)
DD45 39
1
/2" (1003)
WOLF COOKTOP VENTILATION










