User's Manual

wolfappliance.com
|
15
WOLF BUILT-IN OVENS
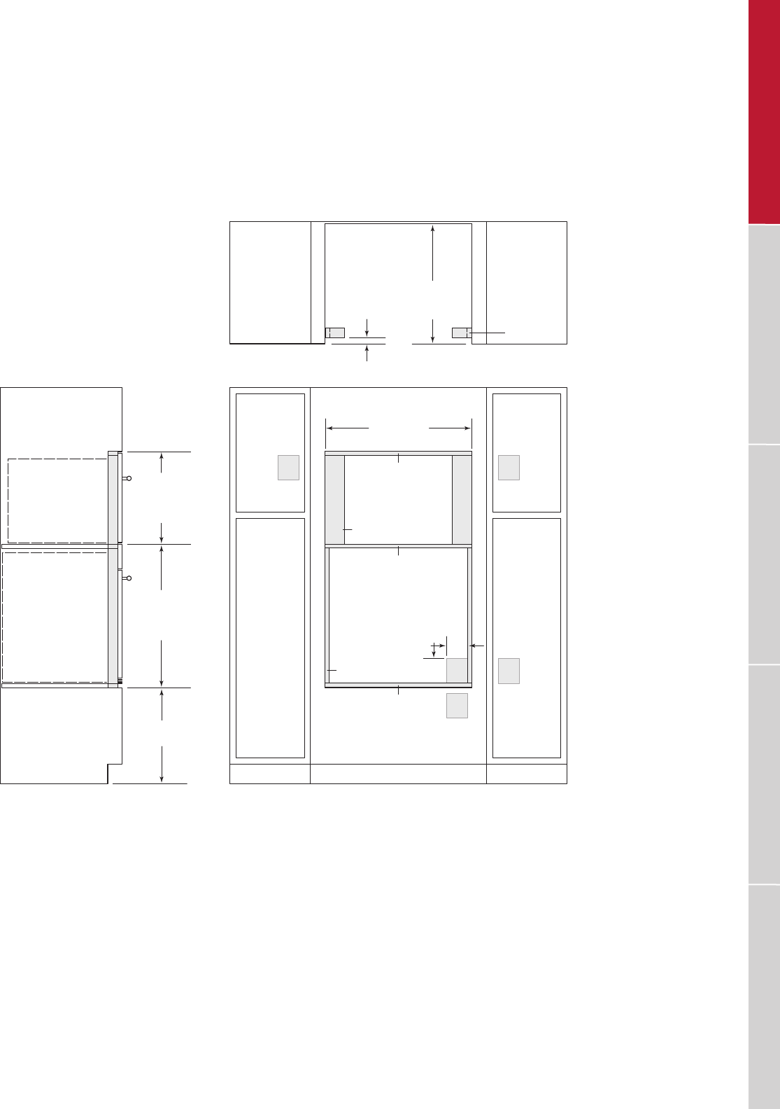
30" E Series Single Oven
FLUSH INSET INSTALLATION WITH CONVECTION STEAM OVEN
E
FRONT VIEW
SIDE
VIEW
30
3
/
8
"
(772)
FLUSH INSET WIDTH
*W
ill be visible and should be finished to match cabinetry.
**1"
(25) for professional and transitional models and 1
1
/4" (32) for contemporary model.
NOTE: Minimum base support for steam oven 100 lbs
(45 kg) and E series oven 250 lbs (113 kg).
Electrical supply for steam oven must be located in adjacent cabinet within 3'
(.9 m) of opening.
Location of electrical supply within E series oven opening may require additional cabinet depth
.
Dashed line represents profile of unit.
18
1
/8"
(460)
FLUSH INSET
HEIGHT
28
1
/4"
(718)
FLUSH INSET
HEIGHT
E SERIES OVEN
CONVECTION
STEAM OVEN
7
/16"(11)
7
/16" (11)
5
/8" (16)
4
1
/
16
"
(103)
1"
(25)
25" (635)
FLUSH INSET
DEPTH
FINISHED
CLEATS*
1"
(25)
OR
1
1
/4" (32)**
TOP VIEW
21" (524)
TYPICAL
E
E
E
E
5"
(127)
4"
(102)
RANGES / RANGETOPSOVENS / WARMING DRAWERS OUTDOOR GRILLS VENTILATIONCOOKTOPS