Specification Sheet

42"BUILT-INSIDE-BY-SIDEREFRIGERATOR/FREEZERWITHDISPENSER
PRODUCTSPECIFICATIONS
Model BI-42SD/S
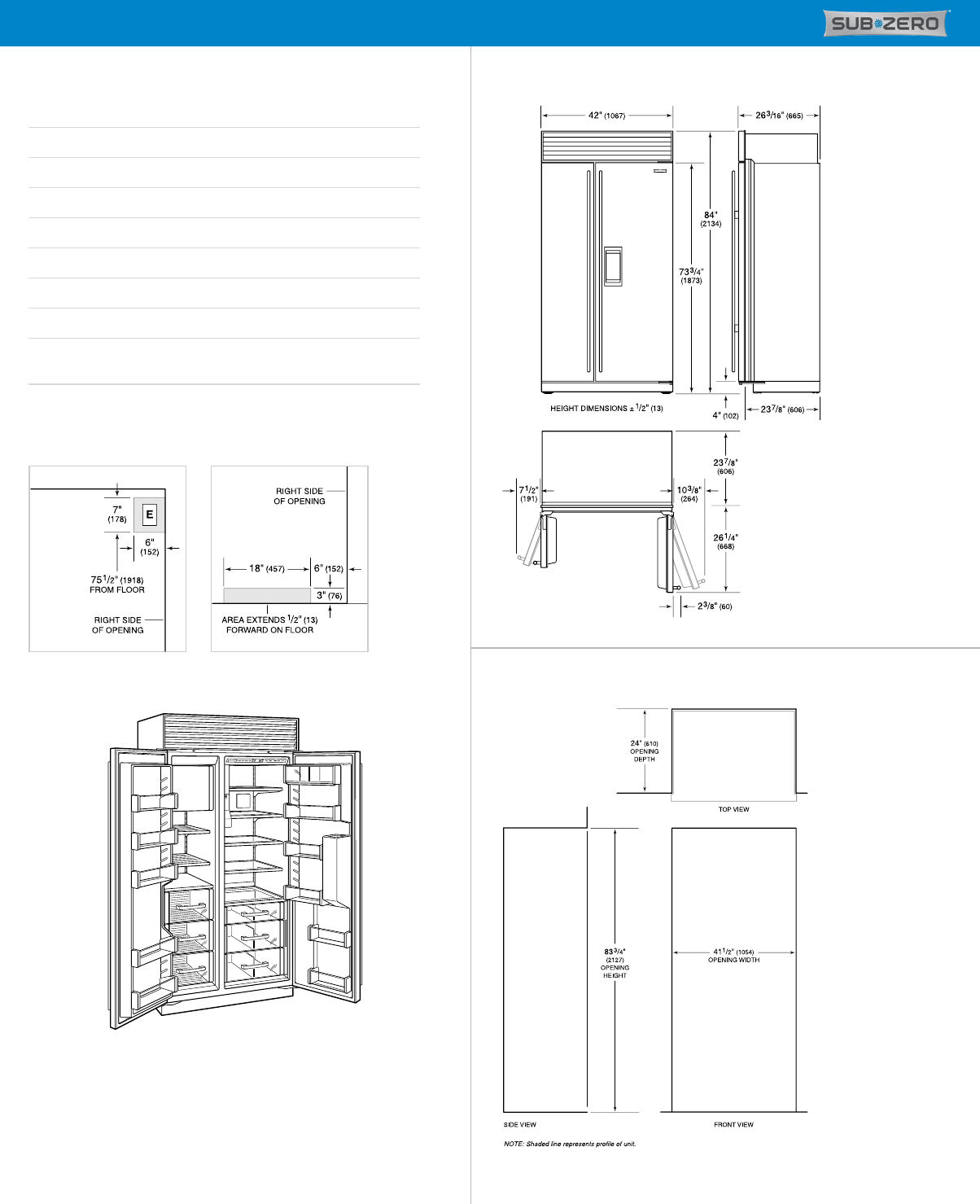
Dimensions 42"Wx84"Hx24"D
DoorClearance 261/4"
Weight 608lb
RefrigeratorCapacity 16cuft
FreezerCapacity 7.9cuft
ElectricalSupply 115VAC,60Hz
ElectricalService 15ampdedicatedcircuit
PlumbingSupply 1/4"ODcopper,braidedstainlesssteelor
PEXtubing
PlumbingPressure 35–120psi
ELECTRICAL PLUMBING
INTERIORVIEW
Thisillustrationisintendedforinteriorreferenceonlyandmaynotrepresenttheexterior
ofthemodelbeingspecified.
DIMENSIONS
STANDARDINSTALLATION


