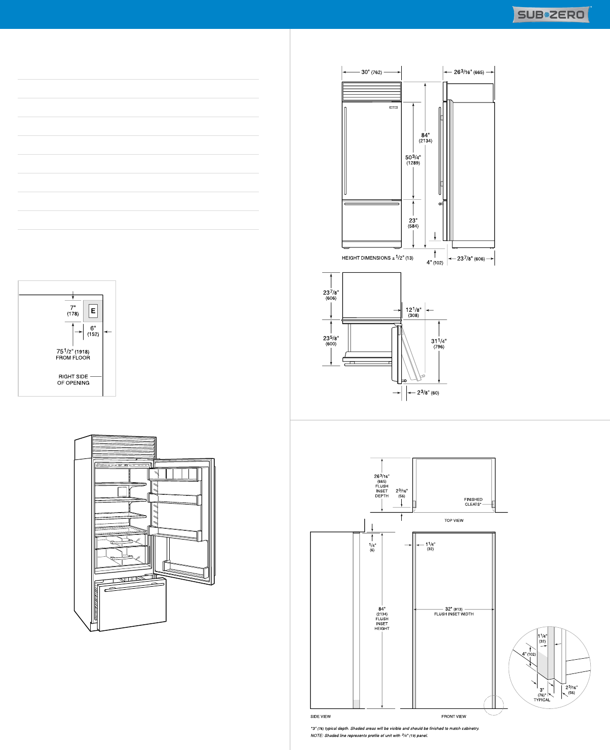
Quick Reference Guide - Flush Inset Installation

30"BUILT-INOVER-AND-UNDERREFRIGERATOR/FREEZER-PANELREADY
PRODUCTSPECIFICATIONS
Model BI-30U/O
Dimensions 30"Wx84"Hx24"D
DoorClearance 311/4"
DrawerClearance 235/8"
Weight 462lbs
RefrigeratorCapacity 13.2cu.ft.
FreezerCapacity 4.2cu.ft.
ElectricalSupply 115VAC,60Hz
ElectricalService 15ampdedicatedcircuit
Receptacle 3-pronggrounding-type
ELECTRICAL
INTERIORVIEW
Thisillustrationisintendedforinteriorreferenceonlyandmaynotrepresentthe
exteriorofthemodelbeingspecified.
DIMENSIONS
FLUSHINSETINSTALLATION