Quick Reference Guide - Standard Installation

30" CLASSIC OVER-AND-UNDER REFRIGERATOR/FREEZER - PANEL READY
PRODUCT SPECIFICATIONS
Model BI-30U/O
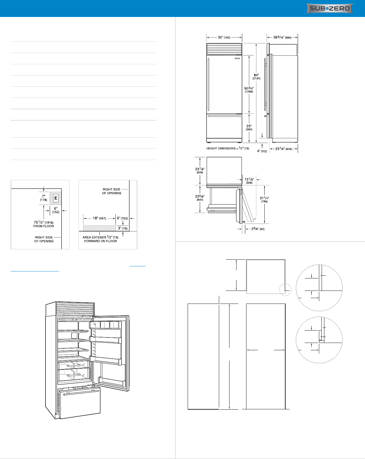
Dimensions 30"W x 84"H x 24"D
Door Clearance 31 1/4"
Drawer Clearance 23 5/8"
Refrigerator Capacity 13.2 cu. ft.
Freezer Capacity 4.2 cu. ft.
Electrical Supply 115 VAC, 60 Hz
Electrical Service 15 amp dedicated circuit
Plumbing Supply 1/4" OD copper, braided stainless steel or
PEX tubing
Plumbing Pressure 35–120 psi
Receptacle 3-prong grounding-type
ELECTRICAL PLUMBING
PANEL SPECIFICATIONS For complete panels specifications including width/height,
weight requirements, thickness requirements and offset details visit subzero-
wolf.com/builtinconfigurator.
NOTE: Dimensions in parenthesis are in millimeters unless otherwise specified
INTERIOR VIEW
This illustration is intended for interior reference only and may not represent the exterior
of the model being specified.
DIMENSIONS
STANDARD INSTALLATION
NOTE: 3
1
/2" (89) finished returns will be visible and should be finished to match cabinetry.
Shaded line represents profile of unit.
83
3
/4"
(2127)
OPENING
HEIGHT
24" (610)
OPENING
DEPTH
FRONT VIEWSIDE VIEW
TOP VIEW
29
1
/2" (749)
OPENING WIDTH
3
/4" (19)
TYPICAL
FRAMED
CABINETRY
29
1
/2"
(749)
FILLER
3
1
/2" (89)
FINISHED
RETURN
FRAMELESS
CABINETRY
29
1
/2"
(749)
3
/4" (19)
TYPICAL
3
1
/2" (89)
FINISHED
RETURN
Specifications are subject to change without notice. This information was generated on April 27, 2021. Verify specifications prior to finalizing your cabinetry/enclosures.