Datasheet

Table Of Contents
DocID2572 Rev 33 35/44
LD1117 Package mechanical data
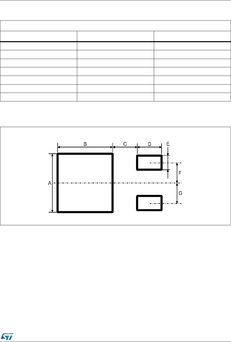
Table 20. Footprint data
Values
mm. inch.
A 6.70 0.264
B6.700.64
C1.80.070
D3.00.118
E 1.60 0.063
F 2.30 0.091
G 2.30 0.091
Figure 19. DPAK footprint recommended data