Bedienung und Installation Operati0n and installation Utilisation et installation Bediening en installatie Operación e instalación Obsługa i montaż Használati és szerelési Obsluha a instalace Обслуживание и монтаж Geschlossener Wandspeicher | Unvented (pressurized) wallmounted water heater | Chauffe-eau muraux sous pression | Gesloten wandboilerr | Tanque de agua caliente para Instalar en la Pared | Pojemnościowe, ciśnieniowe, wiszące ogrzewacze wody | Zárt fali melegvíz-tároló | Tlakové nástěnné zásobníky
Inhalt Treść Deutsch 1. Gebrauchs- und Montageanleitung 2. Montage 4-5 4 4 Content Polski 14-15 1. Instrukcja obsługi i montażu 2. Montaż 14 14 Tartalom English 1. Operating and Installation 2. Installation 6-7 6 6 Table des matières Français 1. Notice d'utilisation et de montage 2. Montage Magyar 16-17 1. Használati és szerelési utasítás 2. Szerelés 16 16 Obsah 8-9 8 8 Česky 18-19 1. Návod k montáži a použití 2. Montáž 18 18 Содержание Inhoud Nederlands 1.
6 K 26_02_07_0069 I 26_02_07_0074 X A 5 3 N PE M A (L) 1 B (N) 2 F E 3 1 7 6 2 3 C D 4 5 85_02_07_0001 5 26_02_07_0075 26_02_07_0029 L 80 - 250 l 184 265 300 360 80_02_07_0005 B E 2 265 300 350 360 415 450 80_02_07_0006 C26_02_20_0003 C H 1 6 7 8 4 R 4 5 3 2 1 4 30 - 50 l D
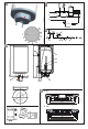
BEDIENUNGS- UND MONTAGEANLEITUNG PSH 30 - 200 TM 1 Gebrauchsanleitung für den Benutzer und den Installateur Diese Anleitung Diese Anleitung sorgfältig aufbewahren, bei Besitzerwechsel dem Nachfolger aushändigen. Bei Wartungs- und etwaigen Instandsetzungsarbeiten dem Installateur zur Einsichtnahme überlassen. Temperatureinstellung Die Wassertemperatur kann am Temperaturwählknopf je nach Bedarf eingestellt werden, der Temperaturwählknopf befindet sich auf der unteren Abdeckhaube (siehe Bild 1).
Der elektrische Anschluss muss unter Beachtung der jeweils gültigen Montageanleitung sowie den jeweils gültigen Normen und Vorschriften durchgeführt werden. „Bestimmungen für das Errichten von Starkstromanlagen mit Nennspannungen bis 1000 V“ und Vorschriften des örtlichen Energieversorgungsunternehmens (EVU) sind dabei besonders zu beachten. Die Geräte sind nur für festen Anschluss an ein 230 V ~ Wechselstromnetz vorgesehen.
OPERATION MANUAL PSH 30 - 200 TM Operating instructions for the user and the professional This manual Keep these instructions in a safe place. Hand them over to the new owner if the appliance changes hands. Make them available to the fitter when any maintenance work or repairs are carried out. Temperature Selection The water temperature can be adjusted as required using the temperature selection knob. The temperature selection knob is located on the lower cover (see Figure 1).
The appliance must be connected to the power supply taking the applicable installation instructions and the relevant standards and regulations into consideration. It is particularly important to observe the “Regulations for installing high‑voltage systems with rated voltages up to 1000 V” and regulations from the local power supply company. The appliances are only designed for permanent connection to a 230 V ~ AC network.
INSTRUCTIONS D’UTILISATION ET DE MONTAGE PSH 30 - 200 TM 1 Notice d’utilisation pour l’utilisateur et l’installateur À propos de cette notice Conservez soigneusement cette notice et en cas de changement de propriétaire, remettez-la à votre successeur. Lors de travaux de maintenance et éventuellement de remise en état, remettez-la à l‘installateur pour qu‘il puisse la consulter. Réglage de la température La température de l’eau peut être réglée en fonction des besoins à l’aide du sélecteur de température.
INSTRUCTIONS DE MONTAGE PSH 30 - 200 TM Pour lui assurer une bonne longévité, il est recommandé de soumettre l‘anode de protection contre la corrosion (anode au magnésium) à une inspection annuelle effectuée par un installateur. Dans les zones où l‘eau est particulièrement corrosive, il peut être nécessaire d‘effectuer ce contrôle plus souvent. Consultez l‘installateur ou renseignez-vous directement auprès de la société distributrice d‘eau pour obtenir des informations correspondantes.
BEDIENINGS- EN MONTAGEAANWIJZING PSH 30 - 200 TM 1 Gebruiksaanwijzing voor de gebruiker en de installateur Deze aanwijzing Bewaar deze aanwijzing zorgvuldig. Als het toestel het eigendom wordt van een nieuwe gebruiker, dient u ook de handleiding te geven. Bij onderhouds- en eventuele herstellingswerkzaamheden de aanwijzing ter beschikking stellen aan de installateur. Temperatuurinstelling De watertemperatuur mag via de temperatuurselectieknop naar wens worden ingesteld.
MONTAGEAANWIJZING PSH 30 - 200 TM De elektrische aansluiting moet worden uitgevoerd met inachtneming van de op dat moment geldige montagehandleiding, evenals de op dat moment geldende normen en voorschriften. In het bijzonder moet het volgende in acht worden genomen: "Bepalingen voor het opbouwen van krachtstroominstallaties met nominale spanningen tot 1000 V" en de voorschriften van het plaatselijke energiebedrijf. De toestellen zijn alleen voorzien voor vaste aansluiting op een wisselstroomnet van 230 V.
INSTRUCCIONES DE USO Y DE MONTAJE PSH 30 - 200 TM 1 Instrucciones de uso para el usuario y el instalador Estas instrucciones Archive estas instrucciones en un lugar seguro y no olvide entregarlas a cualquier posible futuro propietario. Para realizar trabajos de mantenimiento o reparación, présteselas al instalador para que le sirvan de guía. Ajuste de temperatura La temperatura del agua puede ajustarse mediante el selector de temperatura según sea necesario.
INSTRUCCIONES DE MONTAJE PSH 30 - 200 TM La conexión eléctrica debe realizarse conforme a las instrucciones de montaje válidas así como las normas y reglamentos vigentes correspondientes. A este efecto deben observarse especialmente las "Disposiciones para la instalación de equipos de alta tensión con una tensión nominal de hasta 1000 V" y los reglamentos de la compañía eléctrica local. Los aparatos están previstos sólo para la conexión fija a una red de corriente alterna de 230 V.
Instrukcja obsługi PSH 30 - 200 TM Instrukcja obsługi i montażu Dla użytkownika i instalatora Niniejsza instrukcja Niniejszą instrukcję należy starannie przechowywać i przekazać następcy przy zmianie właściciela. Przy pracach konserwacyjnych i ewentualnych pracach remontowych przekazać instalatorowi do wglądu. Regulacja temperatury Temperatura wody może być nastawiona według potrzeb pokrętłem doboru temperatury. Pokrętło doboru temperatury znajduje się w dolnej pokrywie (patrz rysunek 1).
Instrukcja montażu PSH 30 - 200 TM Podłączenie elektryczne należy wykonać przy uwzględnieniu obowiązującej instrukcji montażu oraz obowiązujących norm i przepisów. Należy zwrócić szczególną uwagę na przepisy dotyczące urządzeń o napięciu znamionowym do 1000 V. Urządzenia są przeznaczone tylko do stałego przyłączenia do sieci prądu przemiennego 230 V ~. W przewodzie zasilającym musi być przy tym dostępny wielobiegunowy odcinek rozdzielający z odstępem między stykami wielkości co najmniej 3 mm (np.
Használati utasítás PSH 30 - 200 TM 1. Használati és szerelési utasítás A felhasználó és a szerelő számára Ezt az utasítást Gondosan őrizze meg a jelen utasítást, és tulajdonosváltás esetén adja át az utódnak. Karbantartási és esetleges javítási munkák esetén az utasítást adja át a szerelőnek betekintés céljából. Homérsékletbeállítás A víz hőmérsékletét a hőmérsékletszabályozó gombbal igény szerint lehet beállítani. A hőmérsékletszabályozó gomb az alsó fedőburkolaton található (lásd az 1. képet).
Szerelési utasítás PSH 30 - 200 TM Az elektromos csatlakozást a mindenkor érvényes szerelési utasítás, valamint a mindenkor érvényes szabványok és előírások figyelembevételével kell létrehozni. Különös figyelmet kell szentelni az „1000 V névleges feszültségű erősáramú villamos berendezések létesítése“ című szabvány rendelkezéseinek, valamint a helyi közüzemi energiaszolgáltató vállalat előírásainak. A készülékeket 230 V ~ váltakozó áramú hálózatra történő állandó hálózati csatlakoztatásra tervezték.
Návod a použití PSH 30 - 200 TM 1. Návod k montáži a použití Pro uživatele a instalatéry Tento návod Tento návod dobře uschovejte a při změně majitele jej předejte nástupci. Při údržbě a dalších činnostech spojených s opravami jej předejte k nahlédnutí instalatérovi. Nastavení teploty Teplotu vody lze podle potřeby nastavit pomocí ovladače nastavení teploty. Ovladač nastavení teploty se nachází na spodním krytu (viz obr. 1).
Montáži a použití PSH 30 - 200 TM Elektrické připojení musí být provedeno při dodržení pokynů uvedených v platném návodu k montáži a rovněž platných norem a předpisů. Přitom je nutno dodržovat zejména „Ustanovení pro provoz silnoproudých zařízení se jmenovitým napětím do 1000 V“ a předpisy místního rozvodného závodu. Přístroje jsou určeny jen pro pevné připojení k síti se střídavým napětím 230 V ~.
Инструкция по монтажу и эксплуатации PSH 30 - 200 TM ИНСТРУКЦИЯ по монтажу и эксплуатации Данная инструкция Аккуратно храните данную инструкцию, при смене владельца передавайте ее новому владельцу. Перед началом работ по техническому обслуживанию или ремонту предоставьте данную инструкцию для ознакомления сервисному специалисту. Установка температурного режима При необходимости температура воды может устанавливаться на регуляторе температуры, который находится на нижнем кожухе (см. Рис. 1).
Инструкция по монтажу и эксплуатации PSH 30 - 200 TM Электрическое подключение должно производиться с соблюдением действующей инструкции по монтажу, а также действующих норм и предписаний. Необходимо также уделять внимание стандартам, нормам и правилам, действующим на территории применения, касательно органиции электрической проводки до прибора. Данные приборы предназначены только для жестко фиксированного подключения к сети переменного тока ~ 230 В.
Guarantee | Environment and Recycling PSH 30 - 200 TM Garantie Garantie Für außerhalb Deutschlands erworbene Geräte gelten nicht die Garantiebedingungen unserer deutschen Gesellschaften. Vielmehr kann in Ländern, in denen eine unserer Tochtergesellschaften unsere Produkte vertreibt, eine Garantie nur von dieser Tochtergesellschaft erteilt werden. Eine solche Garantie ist nur dann erteilt, wenn die Tochtergesellschaft eigene Garantiebedingungen herausgegeben hat.
Guarantee | Environment and Recycling PSH 30 - 200 TM Garancia A Németországon kívül vásárolt készülékekre nem érvényesek cégünk németországi vállalatainak garanciális feltételei. Az olyan országokban, amelyekben termékeinket egy leányvállaltunk terjeszti, a garanciát elsősorban a leányvállalatunk biztosítja. Garancia csak akkor nyújtható, ha az adott leányvállalat kiadta saját garanciális feltételeit. Azon felül semmilyen garanciát nem nyújtunk.
Deutschland STIEBEL ELTRON GmbH & Co. KG Dr.-Stiebel-Straße | 37603 Holzminden Tel. 05531 702-0 | Fax 05531 702-480 info@stiebel-eltron.de www.stiebel-eltron.de Verkauf Tel. 05531 702-110 | Fax 05531 702-95108 | info-center@stiebel-eltron.de Kundendienst Tel. 05531 702-90015 | Fax 05531 702-95890 | kundendienst@stiebel-eltron.de Ersatzteilverkauf Tel. 05531 702-90050 | Fax 05531 702-95335 | ersatzteile@stiebel-eltron.de Australia STIEBEL ELTRON Australia Pty. Ltd.