- Sterlco Series R Air-Cooled Rotary Liquid Chiller Installation Operation Maintenance Manual
Manuals
Brands
Sterling Manuals
Water Dispenser
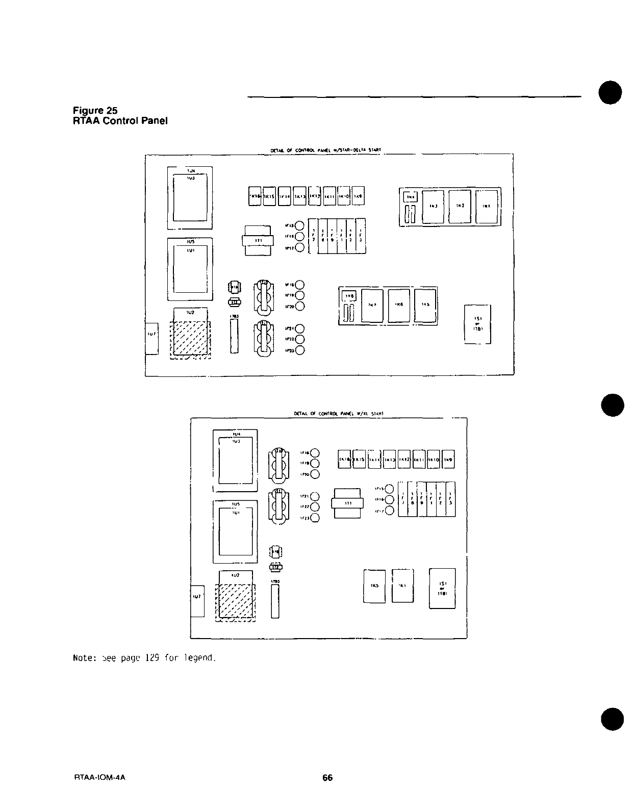
Sterlco Series R RTAA-IOM-4A
71
72
73
74
75
76
77
78
79
80
1
...
...
71
72
73
74
75
...
...
156