- Sterlco Series R Air-Cooled Rotary Liquid Chiller Installation Operation Maintenance Manual
Manuals
Brands
Sterling Manuals
Water Dispenser
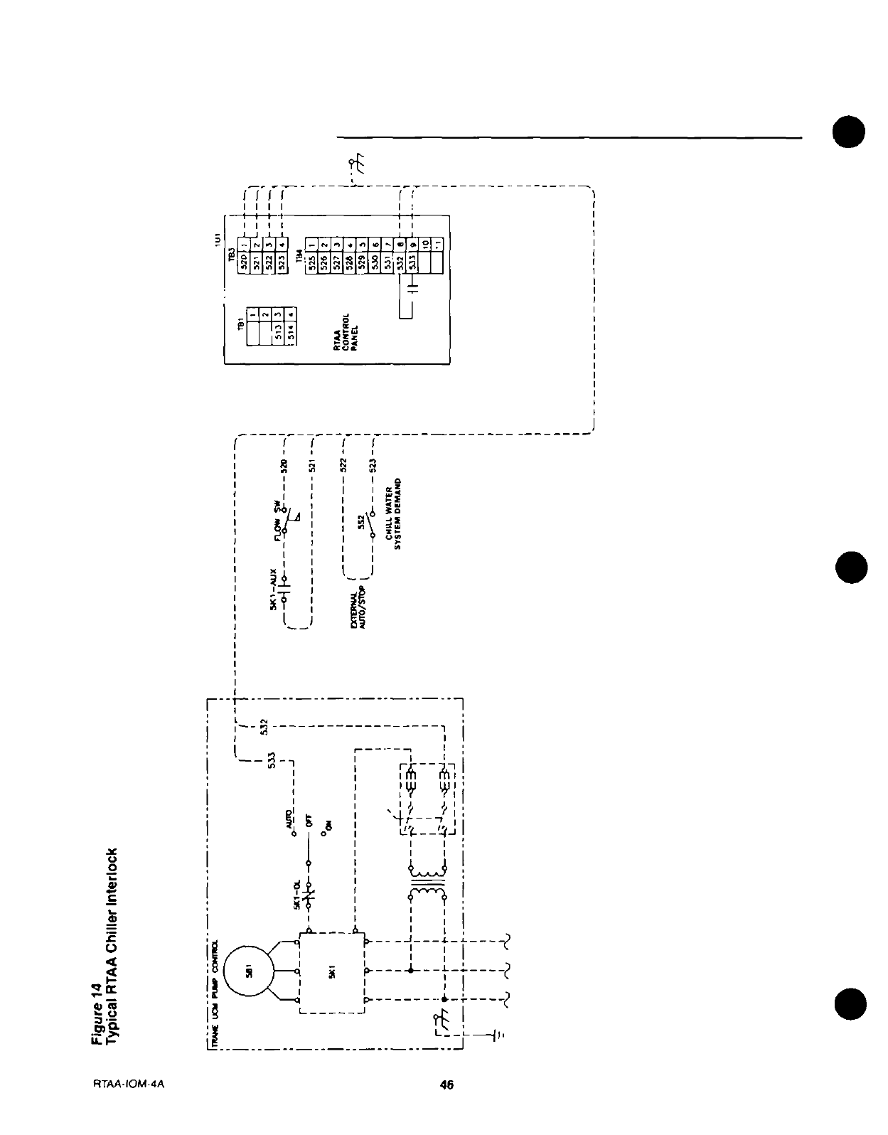
Sterlco Series R RTAA-IOM-4A
51
52
53
54
55
56
57
58
59
60
1
...
...
51
52
53
54
55
...
...
156