- Sterlco Series R Air-Cooled Rotary Liquid Chiller Installation Operation Maintenance Manual
Manuals
Brands
Sterling Manuals
Water Dispenser
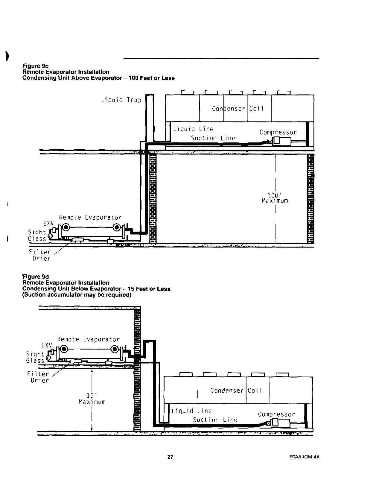
Sterlco Series R RTAA-IOM-4A
31
32
33
34
35
36
37
38
39
40
1
...
...
32
33
34
35
36
...
...
156