- Sterlco Series R Air-Cooled Rotary Liquid Chiller Installation Operation Maintenance Manual
Manuals
Brands
Sterling Manuals
Water Dispenser
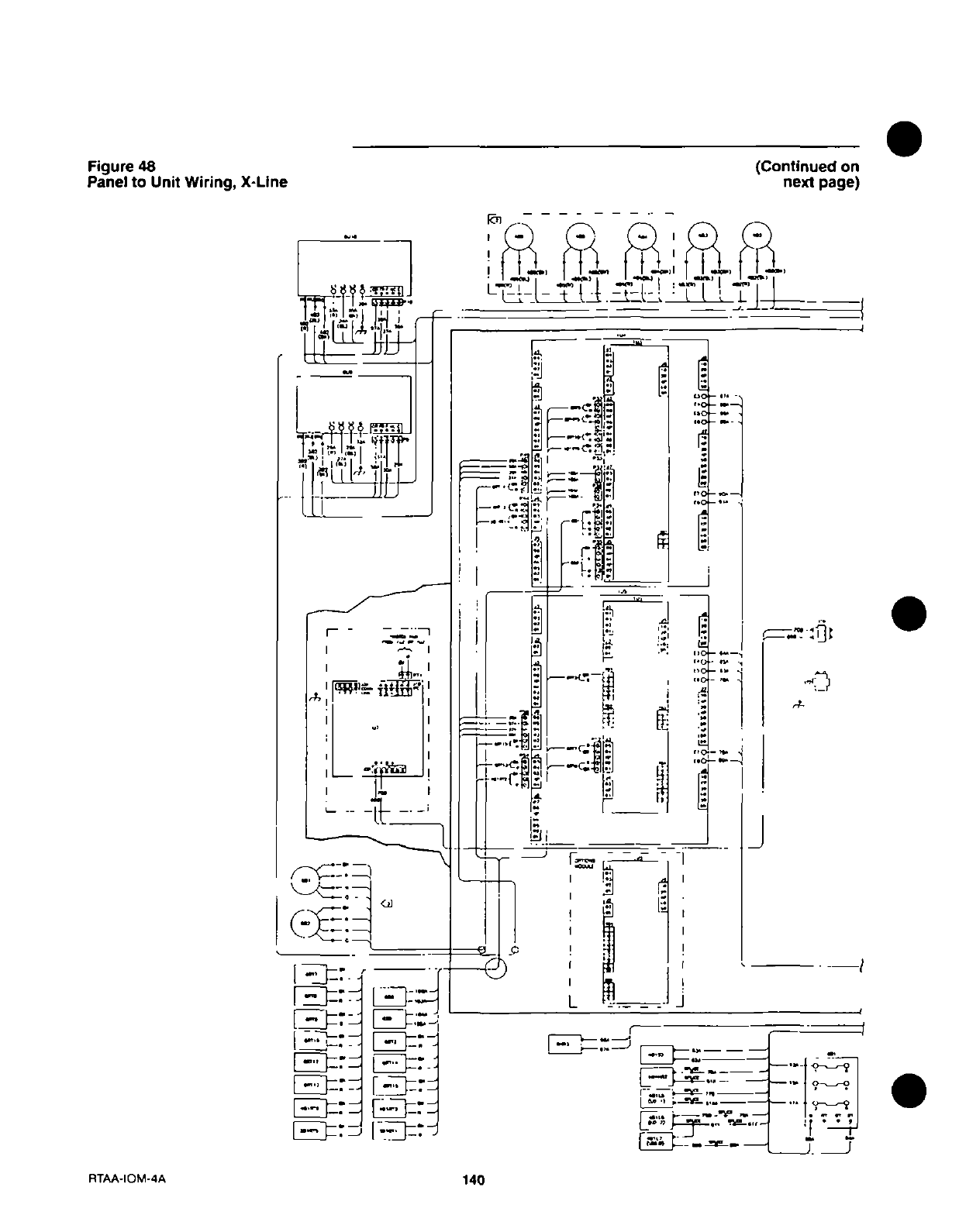
Sterlco Series R RTAA-IOM-4A
141
142
143
144
145
146
147
148
149
150
1
...
...
145
146
147
148
149
...
...
156