Installation Sheet

x2
Réversible
B
Marque "B"
Ligne
de découpe
1/32" (1 mm)
B
Rail
supérieur
x2
#8-18 x 2"
Cache-vis
Cache-vis
x2
1
2
3
Rainure
Cisailles de ferblantier
Boîte à onglets
Lame de 32 dents par pouce
Ruban-cache
Mastic à la silicone à 100%
1/16"
Étiquette de numéro
de série
1077762
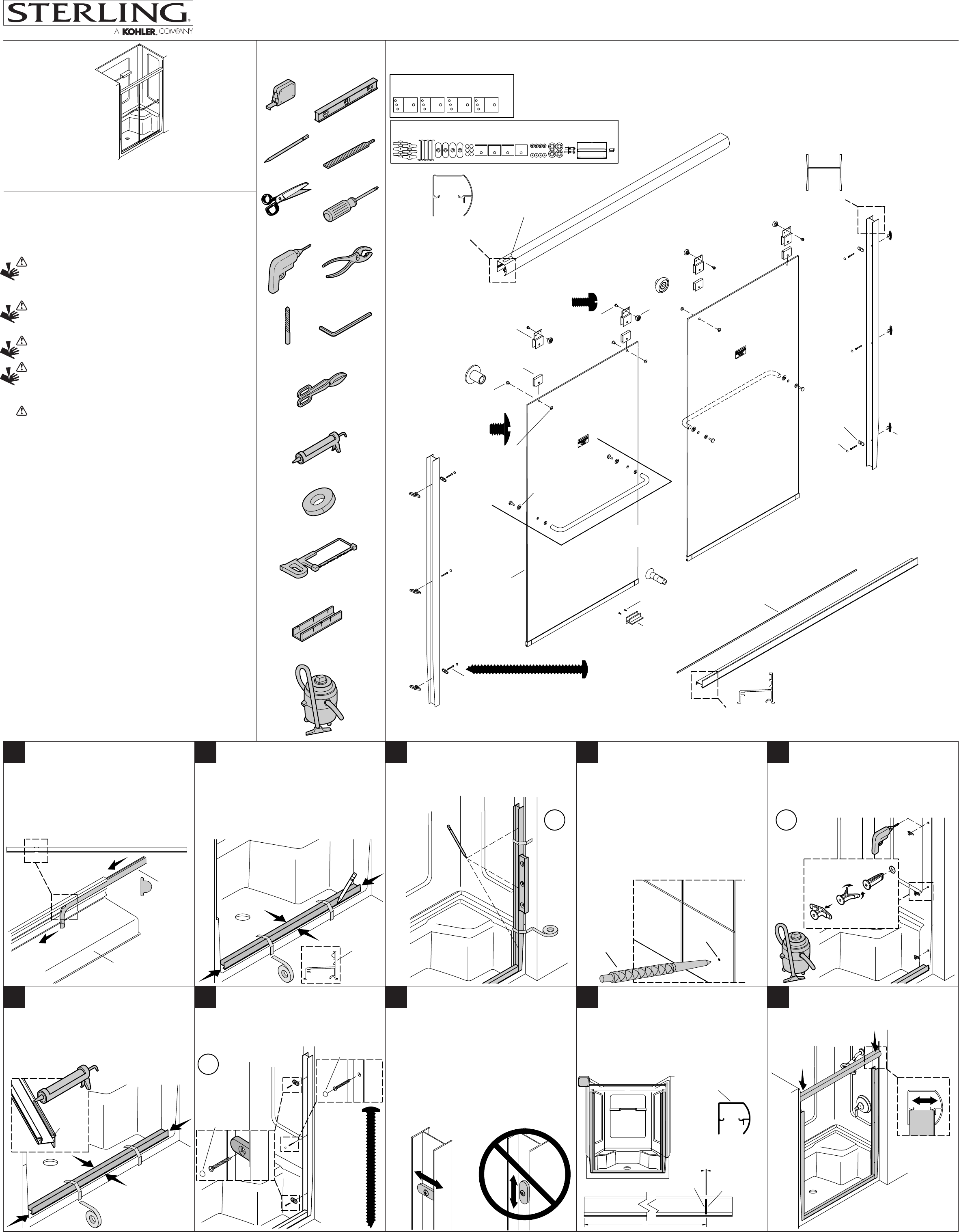
Cheville d'ancrage
1081001
Butoir
1031943**
Cache-vis
1205305** Kit d'étrier de suspension
1203634** Emballage moulant de visserie
1058827-02*
Raccord supérieur
1051142-A
Vis
#8-32 x 3/8"
1199426-01**
Étrier de suspension
1050048-B
Écrou à portée
cylindrique
1077763-A
Boulon
#8-32 x 1/4"
Montant de mur*
1093027
Cale d'espacement (8 chaque)
1044585
Galet
Panneau de porte*
1057704-02** [20" (508 mm)]
1057704-01** [24" (610 mm)]
Porte-serviettes
1056868-A
Vis
1048208-N
Vis
#8-18 x 2"
1058294**
Guide central
1058626-11** (SP5475-57)
1058626-12** (SP5465-45)
Rail inférieur
1053530
Insertion
1199110
Joint statique
Pied
Insertion
Rail inférieur
Correct Incorrect
Repère
Pointeau
Faire glisser l'extrémité avec encoche de
l'insertion dans la rainure et tirer sur l'encoche
jusqu'à l'extrémité du rail inférieur. Limer
l'insertion pour la mettre à ras du rail inférieur.
Centrer le rail inférieur sur le rebord avec le pied
dirigé vers l'extérieur. Faire tenir le rail inférieur
en place avec du ruban adhésif et marquer
l'emplacement.
Positionner les montants de mur par-dessus le
rail inférieur. Mettre les deux montants de mur
d'aplomb. Marquer les trous de vis.
Installations de carrelage seulement
Entailler le carrelage au niveau du repère pour
le trou avant de percer avec un pointeau. Ceci
empêche la mèche de se déplacer lorsqu'on
commence à percer le trou.
Lors de l'installation d'un mur de carrelage,
commencer par percer un trou de petit diamètre,
puis un trou plus grand.
Installer les dispositifs d'ancrage. Ne pas
installer les vis directement dans le carrelage,
étant donné que ceci pourrait fissurer celui-ci.
Utiliser une mèche à maçonnerie lors du
perçage.
Retirer les montants de murs. Percer des trous
de 5/16" dans les murs et insérer les chevilles
d'ancrage.
Appliquer du mastic à la silicone dans la
rainure située sur le dessous du rail inférieur.
Sécuriser le rail inférieur sur le rebord le long de
l'emplacement marqué.
Repositionner les deux montants de mur.
Sécuriser les montants de mur avec des vis. Fixer
une butée sur les emplacements supérieur et
inférieur.
Inspecter les butées pour vérifier qu'elles sont
alignées correctement sur le plan horizontal avec
les montants de mur.
Mesurer la distance "B" au-dessus des montants
de murs. Soustraire 1/32" (1 mm) ou la largeur
d'une lame de scie de "B". Marquer et couper le
rail supérieur.
Positionner le rail supérieur sur les montants de
mur. N'importe lequel des côtés du rail supérieur
peut être tourné vers l'extérieur.
Portes de douche et de baignoire coulissantes Série SP5400
Portes de douche coulissantes
31204890-2-D
USA/Canada: 1-800-STERLING (1-800-783-7546)
Mexique: 001-877-680-1310
1204890-2-D
Instructions d'installation et d'entretien
Outils requis Identifi cation des pièces
2 3 4
7 86 9
1 5
10
SterlingPlumbing.com
AVERTISSEMENT: Risque de blessures graves. Des dommages
avant l'installation peuvent entraîner des éclatements de verre.
Inspecter le verre et toutes les pièces pour y rechercher des
dommages avant l'installation.
AVERTISSEMENT: Risque de blessures graves. Une installation
incorrecte peut entraîner des éclatements de verre. Suivre toutes les
instructions d'installation.
AVERTISSEMENT: Risque de blessures graves. Ne pas couper le
verre trempé. Le verre trempé éclate lorsqu'il est coupé.
AVERTISSEMENT: Risque de blessures graves. La porte de la
douche et les panneaux latéraux peuvent éclater. Inspecter
régulièrement le verre et toutes les pièces pour y rechercher des
dommages, ou des pièces manquantes ou desserrées.
AVERTISSEMENT: Risque de blessures graves. Toujours porter
des lunettes de sécurité pendant la découpe et le perçage.
IMPORTANT! Ne pas toucher les bords du verre trempé avec des outils ou
d'autres objets durs. Ne pas poser le verre trempé non encadré directement
sur le plancher ou sur une surface dure.
IMPORTANT! Laisser ce manuel pour l'utilisateur final.
Lire ces instructions avant d'installer ou d'utiliser ce produit.
IMPORTANT! Ne pas couper le rail supérieur à la même longueur que le
rail inférieur.
AVIS: La garantie ne s'applique pas aux produits qui ont été modifiés ou
altérés d'une autre façon que celle permise de manière expresse dans le
guide d'installation et d'entretien.
Les murs doivent être compris dans un rayon de 3/8" (10 mm) de l'aplomb.
Couvrir le drain avec du ruban adhésif pour éviter de perdre les petites
pièces.
Suivre les instructions du fabricant du mastic à la silicone en ce qui concerne
l'application et le temps de prise.
Pour regarder cette vidéo d'installation en ligne, visiter le site www.
sterlingplumbing.com.
Pour tout renseignement sur l'entretien, le nettoyage et autre, visiter le site
www.sterlingplumbing.com/care-and-cleaning.
Informations de première
importance!
Lire avant l'installation!
Lire et suivre toutes les
instructions.
*Besoin d'aide? Appeler le centre de services à la clientèle de STERLING au
1-800-STERLING (1-800-783-7546).
Pour tout renseignement sur les pièces de rechange, l'entretien, le nettoyage, et autre,
visiter le site www.sterlingplumbing.com.
**Les codes de fi nition et/ou de couleur doivent être fournis au moment de la commande.
Conserver ce document pour référence.
Noter le numéro de modèle sur le carton d'emballage à titre de référence.
Nº du modèle:______________






