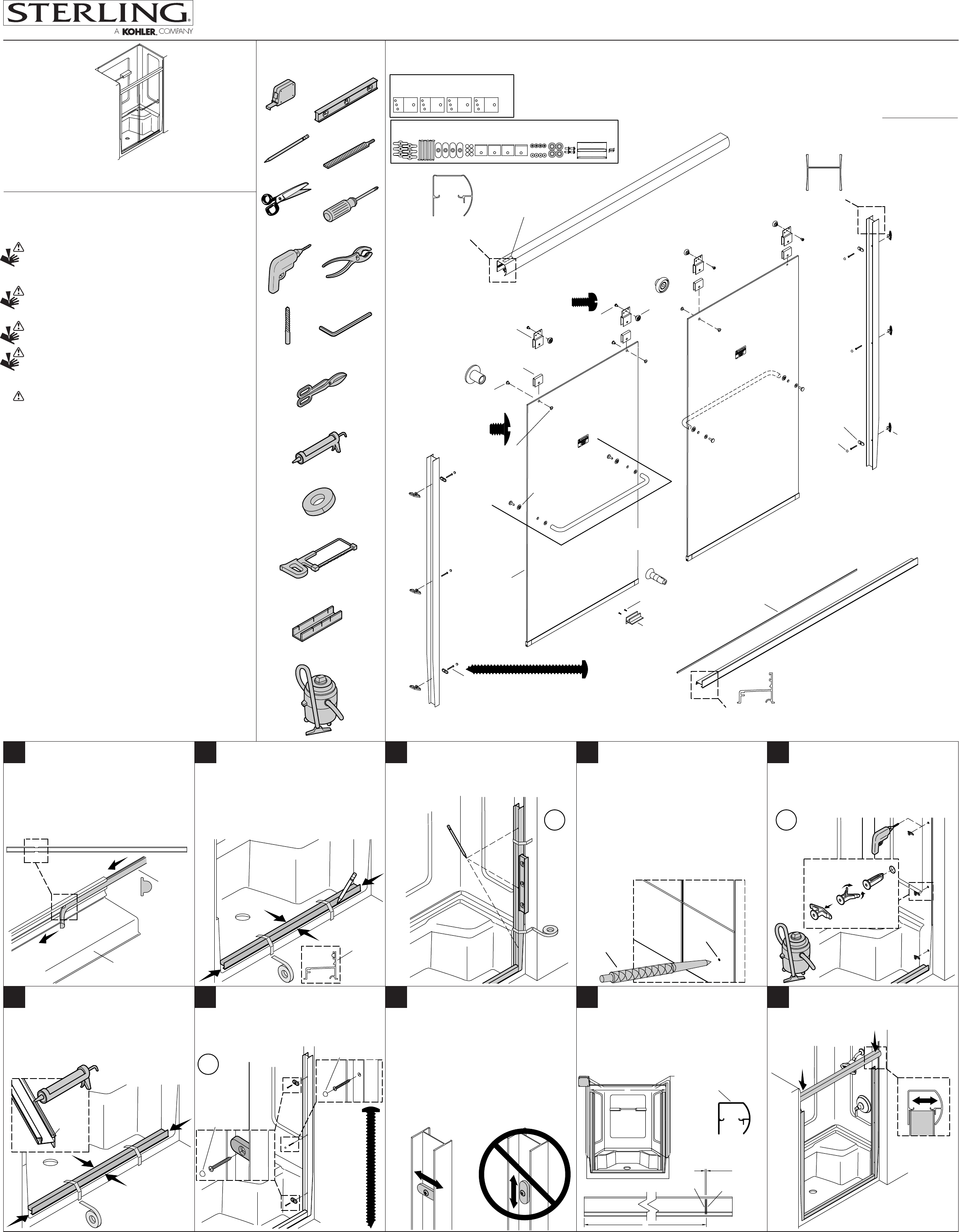
Installation Sheet

x2
Reversible
B
Marca "B"
Línea
de corte
1/32" (1 mm)
B
Carril
superior
x2
#8-18 x 2"
Cubre tornillo
Cubre tornillo
x2
1
2
3
Ranura
Tijeras para chapa
Caja de ingletes
Hoja de sierra de 32
dientes por pulgada
Cinta de enmascarar
Sellador 100% de silicona
1/16"
Etiqueta con número
de serie
1077762
Anclaje
1081001
Tope
1031943**
Cubre tornillo
1205305** Kit de soporte de suspensión
1203634** Paquete al vacío de herrajes
1058827-02*
Carril superior
1051142-A
Tornillo
#8-32 x 3/8"
1199426-01**
Soporte de suspensión
1050048-B
Tuerca cilíndrica
1077763-A
Perno
#8-32 x 1/4"
Jamba mural*
1093027
Espaciador (8 c/u)
1044585
Rueda
Panel de puerta*
1057704-02** [20" (508 mm)]
1057704-01** [24" (610 mm)]
Toallero de barra
1056868-A
Tornillo
1048208-N
Tornillo
#8-18 x 2"
1058294**
Guía central
1058626-11** (SP4575-57)
1058626-12** (SP4565-45)
Carril inferior
1053530
Inserto
1199110
Empaque
Pata
Inserto
Carril inferior
Correcto Incorrecto
Marca
Punzón
Deslice el extremo con muescas del inserto
dentro de la ranura y jale la muesca al extremo
del carril inferior. Recorte el inserto para que
quede al ras con el carril inferior.
Centre el carril inferior en el reborde con la pata
hacia el exterior. Con cinta de enmascarar fije el
carril inferior en su lugar y marque la posición.
Coloque las jambas murales sobre el carril
inferior. Coloque a plomo ambas jambas murales.
Marque los orificios para tornillos.
Solo en instalaciones en azulejo
Con el punzón haga una ligero agujerito en
el azulejo en la marca para el orificio antes de
taladrar. Esto evita que la broca se mueva al
comenzar a taladrar el orificio.
Al instalar en una pared de azulejo, primero
taladre un orificio de poco diámetro, y luego un
orificio más grande.
Instale anclajes. No instale tornillos
directamente en el azulejo, ya que esto podría
fisurar el azulejo.
Al taladrar, utilice una broca para mampostería.
Retire las jambas murales. Taladre orificios de
5/16" en las paredes e introduzca los anclajes.
Aplique sellador de silicona en la ranura en
la cara inferior del carril inferior. Fije el carril
inferior al reborde a lo largo del lugar marcado.
Vuelva a colocar ambas jambas murales. Fije las
jambas murales con tornillos. Fije un tope en
cada una de las ubicaciones superior e inferior.
Verifique que los topes tengan la alineación
horizontal correcta con las jambas murales.
Mida la distancia "B" arriba de las jambas
murales. Reste 1/32" (1 mm), o el ancho de una
hoja de sierra, de la distancia "B". Marque y corte
el carril superior.
Coloque el carril superior sobre las jambas
murales. Cualquier lado del carril superior puede
quedar hacia fuera.
Puertas corredizas de bañera y ducha Serie SP5400
Puertas corredizas de ducha
51204890-2-D
EE.UU./Canadá: 1-800-STERLING (1-800-783-7546)
México: 001-877-680-1310
1204890-2-D
Instrucciones de instalación y cuidado
Herramientas requeridas Identifi cación de piezas
2 3 4
7 86 9
1 5
10
SterlingPlumbing.com
ADVERTENCIA: Riesgo de lesiones graves. Daños previos a la
instalación podrían ocasionar que el vidrio se quiebre en pedazos.
Antes de hacer la instalación revise el vidrio y todas las piezas para
ver si presentan daños.
ADVERTENCIA: Riesgo de lesiones graves. Si la instalación se hace
de manera incorrecta, el vidrio podría quebrarse en pedazos. Siga
todas las instrucciones de instalación.
ADVERTENCIA: Riesgo de lesiones graves. No corte vidrio
templado. El vidrio templado se quiebra en pedazos si se corta.
ADVERTENCIA: Riesgo de lesiones graves. La puerta y los paneles
laterales de la ducha podrían quebrarse en pedazos. Revise con
regularidad el vidrio y todas las piezas para ver si presentan daños, si
algo falta o si hay piezas sueltas.
ADVERTENCIA: Riesgo de lesiones graves. Siempre utilice
anteojos de seguridad al cortar y al taladrar.
¡IMPORTANTE! No toque los filos del vidrio templado con herramientas
ni con ningún otro objeto duro. No ponga el vidrio templado sin marco
directamente sobre el piso ni sobre ninguna otra superficie dura.
¡IMPORTANTE! Deje este manual para el usuario final.
Lea estas instrucciones antes de instalar o de utilizar este producto.
¡IMPORTANTE! No corte el carril superior a la misma longitud que el
carril inferior.
AVISO: La garantía no se aplica a un producto que haya sido modificado
o alterado de alguna forma que no sean las permitidas expresamente en la
Guía de instalación y cuidado.
Las paredes deben estar a menos de 3/8" (10 mm) de estar a plomo.
Cubra el desagüe con cinta de enmascarar para evitar perder piezas
pequeñas.
Siga las instrucciones de aplicación y de tiempo de secado del fabricante del
sellador de silicona.
Para ver esta instalación en video en línea, visite www.sterlingplumbing.
com.
Para el cuidado y la limpieza y otra información, visite
www.sterlingplumbing.com/care-and-cleaning.
¡Información crítica!
¡Lea antes de instalar!
Lea y siga todas las
instrucciones.
*¿Necesita ayuda? Comuníquese con el Centro de Atención al Cliente
de STERLING al 1-800-STERLING (1-800-783-7546).
Para obtener información acerca de piezas de repuesto, cuidado y
limpieza, y otro tipo de información, visite www.sterlingplumbing.com.
**Se debe especifi car el código del acabado/color con el pedido.
Guarde este documento para servicio futuro.
Anote el número de modelo de la caja como referencia.
Número de modelo:______________






