Installation Guide

Inside of
Shower
Screw
Screw
Screw
Plug
Bulb Seal
Strike Side – Top View
Plug
Installed View
Strike Side – Top View
Back Groove
Front Groove
Jamb Seal
Bottom
Pivot Pin
Nylon
Washer
Back Plate
Sleeve
Screw
Gasket
Label
Setscrew Hole
Setscrew Hole
#8-32 x 3/8"
Lay flat.
Bottom
Pivot Pin
Top Pivot Pin
Hinge Plate
Screw
Hex Wrench
Setscrew
Screw
Screw
Screw
Inside of
Shower
Logo
Spacer
Handle Setscrew
Spacer
Bridge Member
Outside of
Shower
Inside of
Shower
Glass Door Panel
Threshold Seal
Water Dam
100% Silicone Sealant
Seal here, outside only.
Troubleshooting
Symptom: Alignment Recommended Action
1. The door panel does not close or is not aligned. A. Ensure that the jamb seals are seated into the fixed-panel grooves. See step 13.
B. Ensure the bridge members are flush with the fixed panels. See steps 9 and 10.
C. Check that both the hinge screws and the hinge setscrews are tight. Realign the door if needed. See steps 17 and 18.
D. Check the front surface of the fixed panel frame for plumb. If not plumb, loosen the screws, and adjust until plumb
and flush with the strike seal.
2. The bridge member does not fit between the
fixed panels.
A. Check that the wall jambs are plumb and centered 35-7/16” (900 mm) away from the shower walls. See step 2.
B. Check the fixed panel alignment. Adjust the fixed panel alignment if needed. See step 8.
C. Ensure that the connector blocks are installed with the connector-block tab inserted into the fixed-panel groove.
See step 7.
Symptom: Water Leaks Recommended Action
1. Water leaks around the door. A. Ensure that the door pivot is installed away from the showerhead. See step 1.
B. Ensure that the threshold seal is installed with the water dam toward the inside of the shower. See step 21.
C. Ensure that the jamb seals are seated into the fixed-panel grooves. See step 13.
D. Ensure that the bridge members are installed with the water dams toward the outside of the shower. See step 9.
2. Water leaks between the wall jamb and the
fixed panel.
A. Check for proper silicone sealant application. See step 22. Apply more silicone sealant in the leak location.
3. Water leaks under the bottom edge of the
shower door.
A. Check for proper silicone sealant application. See step 23. Apply more silicone sealant in the leak location.
B. Check that the fixed panel rests flat on the shower ledge. Adjust the fixed panel alignment if needed. See step 8.
C. Check if the threshold seal is pushing the door panel open. Trim the threshold seal if needed. See step 21.
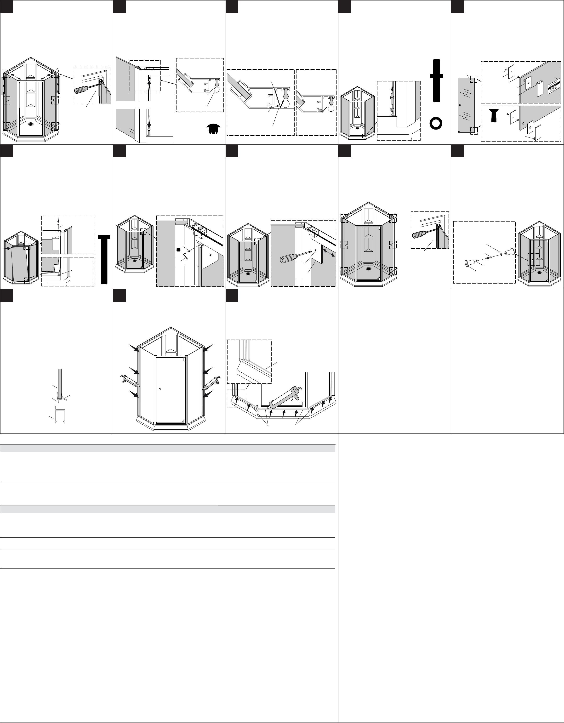
Ensure that the fixed panels are still plumb and
centered on the shower ledge. If needed, tilt or
slide the fixed panels in or out. On the inside of
the shower, tighten the screws when finished.
In the top and bottom bridge members, insert the
plugs into the holes on the strike side (the same
side as the bulb seal).
Press the jamb seals into the back grooves on the
strike side of the door opening. Snap the front tab
of the jamb seal into the front groove. Repeat on
the pivot side.
On the pivot side (opposite the bulb seal), insert
the longer end of the bottom pivot pin through
the nylon washer and into the bridge member.
Attach the gasket to the hinge plate. On the door
panel, insert the sleeves. With the hinge plate on
the outside of the door panel, setscrew hole out,
assemble the hinges.
The door panel installation requires two people.
Lift the bottom door hinge onto the bottom pivot
pin. Tilt the door into place and insert the top
pivot pin through the connector block and into
the top door hinge.
Open the shower door. Thread and tighten
the setscrews into the top and bottom hinge
assemblies. Check that the door aligns against the
jamb seal and closes securely.
If door adjustments are needed, loosen the hinge
screws, adjust or tilt the door panel, and then
tighten the hinge screws. When finished, open
the door and tighten the setscrews.
If either fixed panel needs adjustment, loosen the
three wall jamb screws, adjust or tilt the fixed
panel, and then tighten the wall jamb screws.
Important! Installing the handles without the
spacers can cause the glass to shatter! With
the Sterling handle logo on the outside of the
shower, assemble the handles to the door with
the spacers between the handles and the glass.
Trim the threshold seal to fit to the bottom of the
door panel. Orient the water dam toward the
inside of the shower and press the threshold seal
onto the door panel.
Outside the shower, apply 100% silicone sealant
where the wall jambs meet the wall.
Outside the shower, apply 100% silicone sealant
to the entire shower door length along the
bottom.
21178458-2-D ©2014 Kohler Co.
11 12
17
22
13
18
23
16
21
14
19
15
20
STERLING® Warranty – Bath and Shower Doors
5-Years Limited
SP2375 5100 Series 5300 Series 5400 Series 6300 Series 6500 Series
3-Years Limited
1500 Series 1900 Series 2200 Series 4600 Series 4700 Series 4800 Series 4900 Series 5900 Series
1-Year Limited
500 Series 600 Series 660 Series 670 Series 690 Series 950 Series 2300 Series 3100 Series
Based on the classification specified above, STERLING bath and shower doors are warranted to be free of
manufacturing defects within the time of the specified model’s limited warranty from date of sale.
Kohler Co. will, at its election, repair, rectify or replace a fixture when inspection by Kohler Co. discloses any such
defects occurring in normal usage within the time period of coverage stated above. Kohler Co. is not responsible
for removal or installation costs where replacement is indicated. Damages due to improper handling, installation or
maintenance are not considered manufacturing defects and are not covered by this warranty. This warranty is valid
for the original, consumer purchaser only.
To obtain warranty service, contact Sterling, either through your plumbing contractor, home center, wholesaler or
dealer, or by calling or writing Sterling, Consumer Services, 444 Highland Drive, Kohler, Wisconsin 53044, 1-800-
783-7546.
TO THE EXTENT PERMITTED BY LAW, ALL IMPLIED WARRANTIES INCLUDING THOSE OF
MERCHANTABILITY AND FITNESS FOR A PARTICULAR PURPOSE ARE HEREBY DISCLAIMED.
KOHLER CO. AND SELLER HEREBY DISCLAIM ANY LIABILITY FOR SPECIAL, INCIDENTAL, OR
CONSEQUENTIAL DAMAGES. Some states/provinces do not allow limitations on how long an implied warranty
lasts, or the exclusion or limitation of special, incidental or consequential damages, so these limitations and
exclusions may not apply to you. This warranty gives you specific legal rights. You may have other rights which
vary from state/province to state/province.
This is the exclusive written warranty for Kohler Co.






