User Guide

Fiberglass Cooling Towers Chapter 3: Installation Page 14 of 25
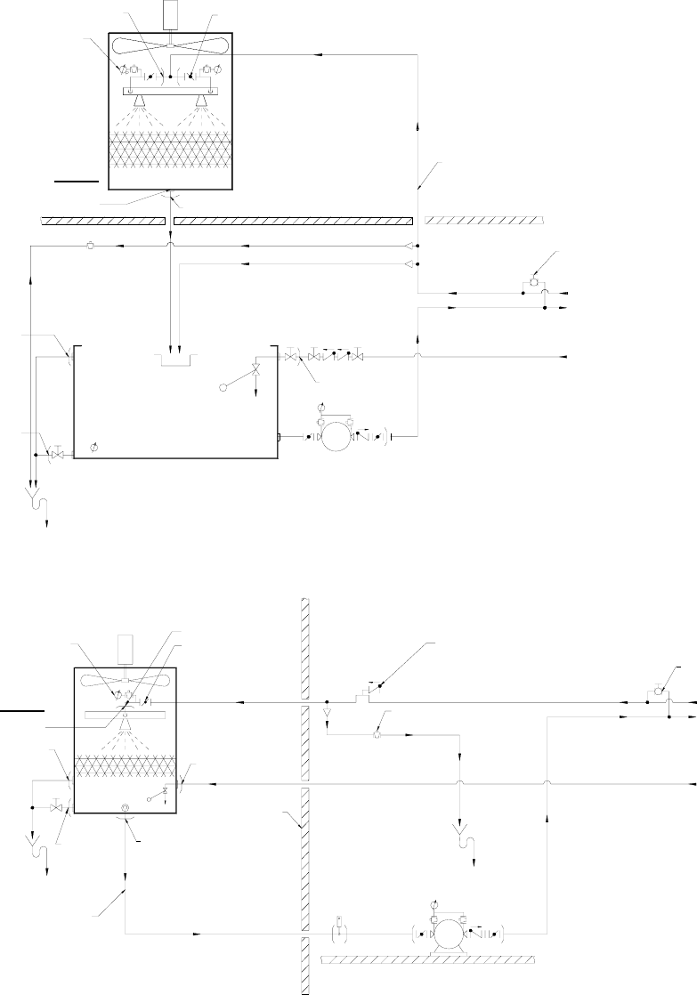
Install the piping according to the piping diagrams in Figure 3 on page 14, Figure 4 on page
14, and Figure 5 on page 15.
Figure 3: Cooling Tower with Tower Reservoir Piping Diagram
inlet
Type 2
Type 2
pressure
gauge
Do not apply
excessive torque
to fittings
Caution!
Overflow
3/4" constant
bleed
Drain
To drain
Strainer basket
Tower water
reservoir
TR
Cooling tower
T
Type 2
balancing
valve
TWR
TWR
Typical bottom outlet
Makeup
P-1
P
Drain line is intended to prevent
tower freeze-up. Do not valve.
NOTE:
Support piping to eliminate
load from tower casing
Bypass
Tower water return
Tower water supply
City water
TWS
TWS
TWR
3/4" constant bleed
3/8" drain line
P
Figure 4: Cooling Tower with Basin as Reservoir Piping Diagram
Pressure
gauge
P
Overflow
Caution!
Do not apply
excessive torque
to fittings
Support piping to eliminate
load from tower casing
To drain
TR
Cooling
tower
TR
TWR
City water line
TWR
TWS
TWS
To drain
P-1
P
Inlet
Balancing valve
Makeup
Side outlet
Drain
Building
exterior
Thermostat-mount
in piping (1/2" fitting)
3/4" constant bleed
1/4" swing check valve
12" above highest point
in return line
Bypass
Tower water return
Tower water supply
City water










