User manual

2-40 HP Portable Chillers Chapter 7: Appendix 63 of 70
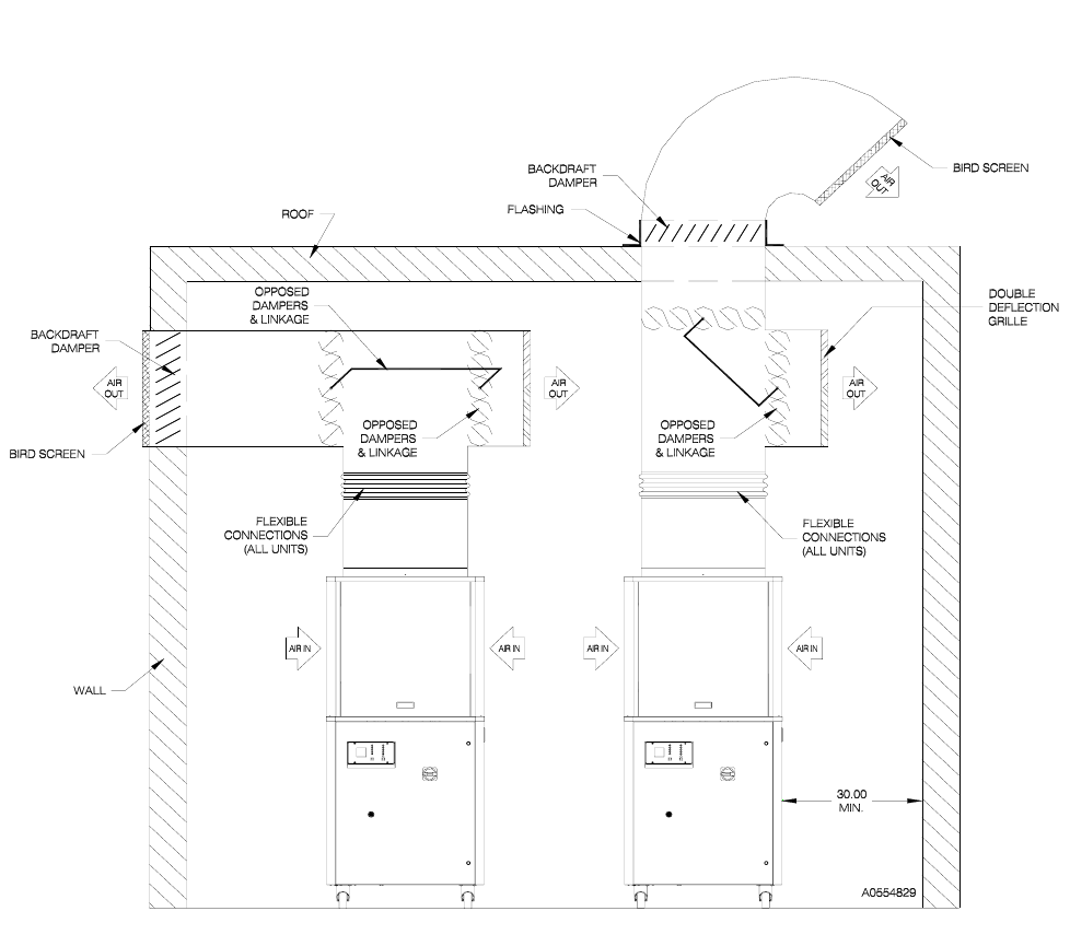
7-6 Typical Ductwork for Air-Cooled Chillers
*See specification tables on pages 45-48 for air flow and pressure capacities.
When locating your air-cooled portable chiller and designing its ductwork, note any potential high
temperature conditions when discharging into your building and any negative pressures with the building
when discharging air outside.
Notes: • Customer use of ductwork requires the high pressure fan option for models 5 through 15 hp. •
Allow 30” (77 cm) minimum clearance around the chiller footprint to facilitate free passage of cooling air
and service accessibility • Size the ductwork for maximum capacity • Support ductwork from the
building structure, not off of the chiller • Back draft damper to outside must be closed at all times when
fan/blower is not operating • Chillers with dual fans/blower must have a back draft damper on the cycling
fan/blower to prevent recirculation of hot discharge air • Chillers are designed to operate at a condensing
entering air temperature of 60ºF (16ºC) minimum • Maximum total static pressure drop external to the
chiller must not exceed 0.30” WG (75 pa)










