User manual

2-40 HP Portable Chillers Chapter 7: Appendix 54 of 70
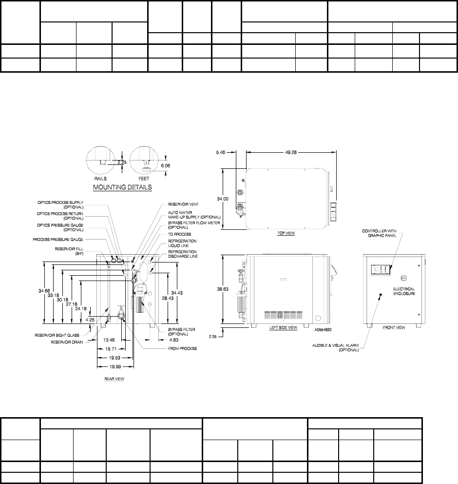
5 hp and 7.5 hp Remote Air-Cooled Portable Chillers
Nominal operating parameters for remote air-cooled models are 50ºF (10ºC) leaving water temperature at 2.4 gpm
per ton (9.1 lpm per 3.517 kW) with 95ºF (35ºC) ambient air. For 50 Hz applications, multiply capacity by 0.83.
Nominal 60 Hz capacity flow rate must be maintained.
Nominal cooling Nom. Com- Refrigeration Power in amps e
capacity c tons water pres- Nom. connections 460/3/60 f
HP no 1 2 flow sor pump in. dia. ODS 1 pump 2 pumps
pump pump pump gpm d hp hp Discharge Liquid rated running rated running
5 4.8 4.6 4.5 11.6 5.0 1.0 5
/8”
5
/8”
12.2 9.2 13.1 10.1
7.5 6.6 6.4 6.3 15.7 7.5 1.0 7
/8”
5
/8”
16.2 12.8 17.3 13.7
c Based on 50ºF (10ºC) chilled water supply temperature and 95ºF (35ºC) ambient air. Optional additional process
pump hp reduces chiller capacity by 0.2 tons per hp (0.703 kW ref. cap. per 0.746 kW pump power).
d Based on 2.4 gpm per ton (9.1 lpm per 3.517 kW), nominal 1 pump.
e An optional oversized process pump adds to the total rated or running chiller amperage. To find the new total
chiller amperage, subtract the standard process pump amperage from the optional pump amperage (see Figure 1
on page 16), and add it to the chiller rated or running amperage.
f Multiply 460/3/60 amperage by 2.0 for 208-230/3/60 amperages; multiply by 0.8 for 575/3/60 amperages.
Remote air-cooled portable chillers come standard with mounting rails. Remote air-cooled portable
chillers are charged with 25 psi (172.4 kPa/1.72 bars) nitrogen for shipping purposes.
Com- Process connections, in. NPT Dimensions Weights
pressor 1 2 no pump, 1 pump, no in inches c Dry d Ship. d Oper. d e
hp pump pumps no tank tank,
to/from
height width depth lbs. lbs. lbs.
5.0 1.5” 2.0” 1.5” 1.5” / 2.0” 40.9” 34.0” 54.7” 597 748 930
7.5 1.5” 2.0” 1.5” 1.5” / 2.0” 40.9” 34.0” 54.7” 644 794 977
c To convert to cm, multiply by 2.54. Add to height dimension based on mounting options.
d Weight is for standard chiller. Some optional features will increase weight.
e Operating weight is with a full 20-gallon (76 liter) reservoir tank of water.










