User manual

2-40 HP Portable Chillers Chapter 7: Appendix 50 of 70
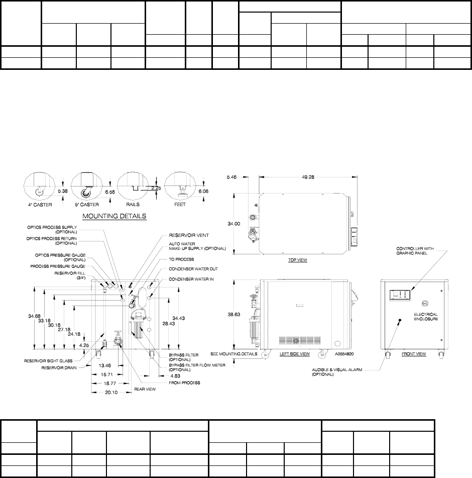
5 hp and 7.5 hp Water-Cooled Portable Chillers
Nominal operating parameters for water-cooled models are 50ºF (10ºC) leaving water temperature at 2.4 gpm per ton
(9.1 lpm per 3.517 kW) with 85ºF (29ºC) tower water. For 50 Hz applications, multiply capacity by 0.83. Nominal 60
Hz capacity flow rate must be maintained.
Nominal cooling Nominal Com- Condenser water Power in amps g
capacity c tons water pres- Nom. Water flow in gpm 460/3/60 h
HP no 1 2 flow sor pump conn. Tower City 1 pump 2 pumps
pump pump pump gpm d hp hp in. NPTwater e
w
ater f rated running rated running
5 5.2 5.0 4.9 12.6 5.0 1.0 1.0” 15.7 7.9 12.2 8.3 13.1 9.2
7.5 7.1 6.9 6.8 17.0 7.5 1.0 1.0” 21.3 10.7 16.4 11.8 17.3 12.7
c Based on 50ºF (10ºC) chilled water supply temperature and 85ºF (29ºC) tower water. Optional additional process
pump hp reduces chiller capacity by 0.2 tons per hp (0.703 kW ref. cap. per 0.746 kW pump power).
d Based on 2.4 gpm per ton (9.1 lpm per 3.517 kW), nominal 1 pump.
e Based on availability of 85ºF (29ºC) tower water at 25 psi (172.4 kPa/1.7 bars) minimum.
f Based on availability of 70ºF (21ºC) city water at 25 psi (172.4 kPa/1.7 bars) minimum.
g An optional oversized process pump adds to the total rated or running chiller amperage. To find the new total
chiller amperage, subtract the standard process pump amperage from the optional pump amperage (see Figure 1
on page 16), and add it to the chiller rated or running amperage.
h Multiply 460/3/60 amperage by 2.0 for 208-230/3/60 amperages.
5 hp and 7.5 hp water-cooled chillers come standard with 4” (101 mm) swivel casters.
Com- Process connections, in. NPT Dimensions Weights
pressor 1 2 no pump, 1 pump, no in inches c Dry d Ship. d Oper. d e
hp pump pumps no tank tank, to/from height width depth lbs. lbs. lbs.
5.0 1.5”/2.0 2.0” 1.5” 1.5” / 2.0” 44.0” 34.0” 54.7” 637 787 970
7.5 1.5”/2.0 2.0” 1.5” 1.5” / 2.0” 44.0” 34.0” 54.7” 727 877 1,060
c To convert to cm, multiply by 2.54. Add to height dimension based on mounting options.
d Weight is for standard chiller. Some optional features will increase weight. Multiply by 0.454 to calculate Kg.
e Operating weight is with a full 20-gallon (76 liter) reservoir tank of water.










