User manual

2-40 HP Portable Chillers Chapter 7: Appendix 48 of 70
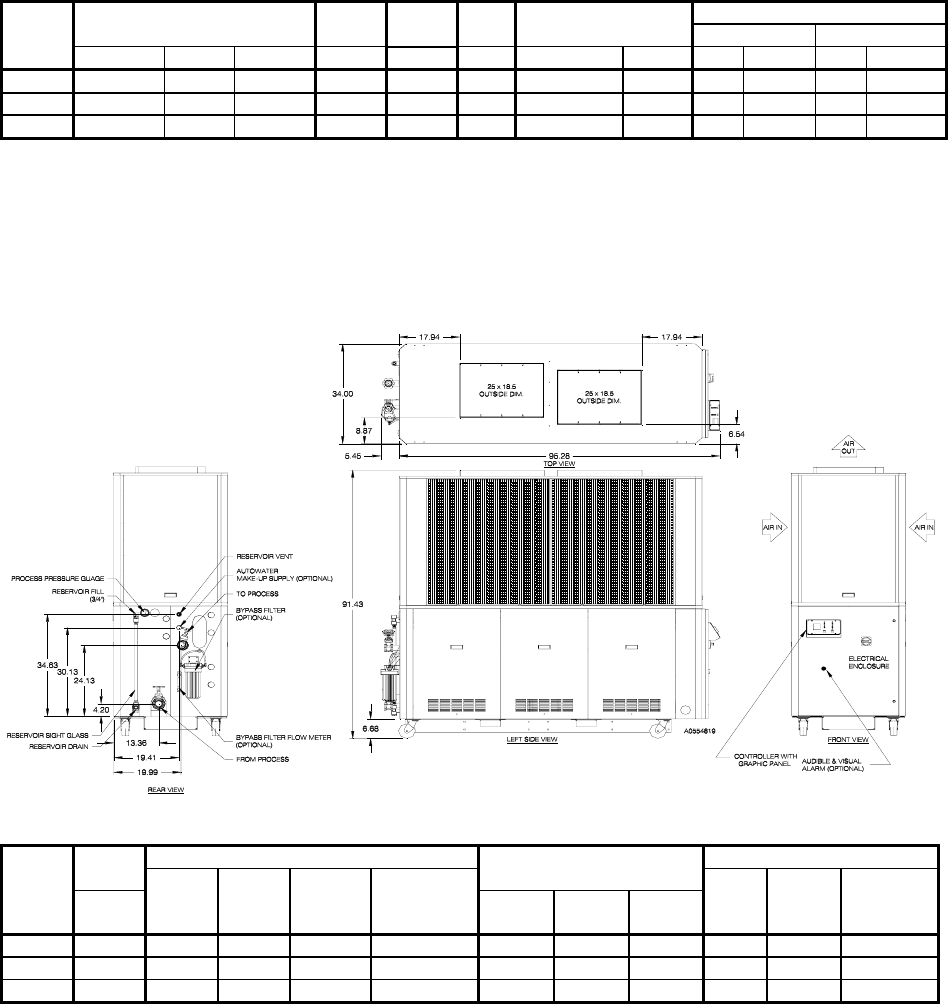
20 hp, 25 hp, and 30 hp Air-Cooled Portable Chillers
Nominal operating parameters for air-cooled models are 50ºF (10ºC) leaving water temperature at 2.4 gpm per ton
(9.1 lpm per 3.517 kW) with 95ºF (35ºC) ambient air. For 50 Hz applications, multiply capacity by 0.83. Nominal 60
Hz capacity flow rate must be maintained.
Nominal cooling Water Com- Nom. Power in amps e, 460/3/60 f
HP capacity c tons flow pressor pump Discharge air 1 pump 2 pumps
no pump 1 pump 2 pump gpm d hp hp openings cfm g rated running rated running
20 19.4 18.4 18.0 46.5 2 @ 10 5 25” x 18.5” 10,200 48.3 42.0 51.4 45.1
25 23.9 22.8 22.4 57.2 2 @ 13 5 25” x 18.5” 13,300 62.1 48.3 65.2 51.4
30 29.2 28.2 27.8 70.2 2 @ 15 5 25” x 18.5” 18,150 74.1 64.4 77.2 67.5
c Based on 50ºF (10ºC) chilled water supply temperature and 95ºF (35ºC) ambient air. Optional additional process
pump hp reduces chiller capacity by 0.2 tons per hp (0.703 kW ref. cap. per 0.746 kW pump power).
d Based on 2.4 gpm per ton (9.1 lpm per 3.517 kW), nominal 1 pump.
e An optional oversized process pump adds to the total rated or running chiller amperage. To find the new total
chiller amperage, subtract the standard process pump amperage from the optional pump amperage (see Figure 1
on page 16), and add it to the chiller rated or running amperage.
f Multiply 460/3/60 amperage by 2.0 for 208-230/3/60 amperages; multiply by 0.8 for 575/3/60 amperages.
g To convert cfm to cmh, multiply by 1.699.
20 hp, 25 hp, and 30 hp air-cooled portable chillers come standard with 4” (101 mm) swivel casters.
Com- Process connections, in. NPT Dimensions Weights
HP pressor 1 Pump 2 Pump no pump, 1 pump, no in inches c Dry d Ship. d Oper. d e
hp to/from to/from no tank tank,
to/from
height width depth lbs. lbs. lbs.
20 2 @ 10 2” / 3” 2.5” / 3” 2.0” 2” / 3” 91.4 34.0 100.7 2,305 2,605 2,971
25 2 @ 13 2” / 3” 2.5” / 3” 2.0” 2” / 3” 91.4 34.0 100.7 2,348 2,648 3,014
30 2 @ 15 2” / 3” 2.5” / 3” 2.0” 2” / 3” 91.4 34.0 100.7 2,610 2,910 3,276
c To convert to cm, multiply by 2.54. Add to height dimension based on mounting options.
d Weight is for standard chiller. Some optional features will increase weight. Multiply lbs. by 0.454 to calculate Kg.
e
Operating weight is with a full 80-gallon (303 liter) reservoir tank of water.










