User manual

2-40 HP Portable Chillers Chapter 7: Appendix 46 of 70
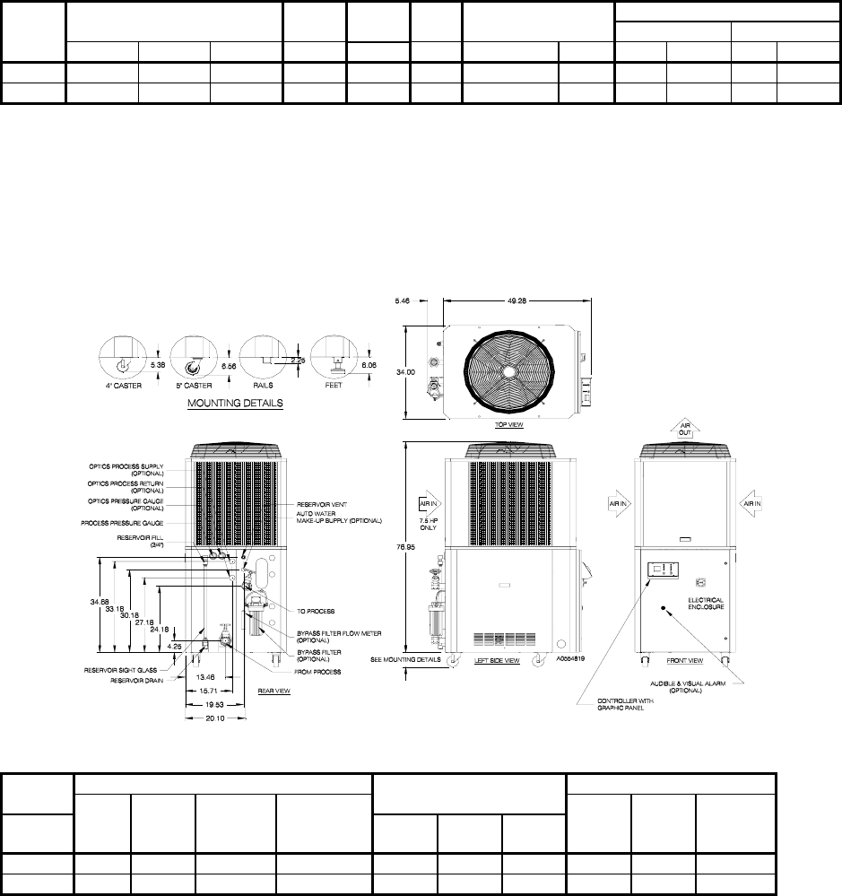
5 hp and 7.5 hp Air-Cooled Portable Chillers
Nominal operating parameters for air-cooled models are 50ºF (10ºC) leaving water temperature at 2.4
gpm per ton (9.1 lpm per 3.517 kW) with 95ºF (35ºC) ambient air. For 50 Hz applications, multiply
capacity by 0.83. Nominal 60 Hz capacity flow rate must be maintained.
Nominal cooling Water Com- Nom. Power in amps f, 460/3/60 g
HP capacity c in tons flow pressor pump Discharge air e 1 pump 2 pumps
no pump 1 pump 2 pump gpm d hp hp openings cfm h rated running rated running
5 4.8 4.6 4.5 11.6 5.0 1.0 1 @ 27” 3,400 14.0 11.0 14.9 11.9
7.5 6.6 6.4 6.3 15.7 7.5 1.0 1 @ 27” 5,100 18.2 14.6 19.1 15.5
c Based on 50ºF (10ºC) chilled water supply temperature and 95ºF (35ºC) ambient air. Optional additional process
pump hp reduces chiller capacity by 0.2 tons per hp (0.703 kW ref. cap. per 0.746 kW pump power).
d Based on 2.4 gpm per ton (9.1 lpm per 3.517 kW), nominal 1 pump.
e Customer use of ductwork requires optional high-pressure fan for 5 hp to 15 hp (3.73 kW to 11.20 kW) models.
f An optional oversized process pump adds to the total rated or running chiller amperage. To find the new total
chiller amperage, subtract the standard process pump amperage from the optional pump amperage (see Figure 1
on page 16), and add it to the chiller rated or running amperage.
g Multiply 460/3/60 amperage by 2.0 for 208-230/3/60 amperages; multiply by 0.8 for 575/3/60 amperages.
h To convert cfm to cmh, multiply by 1.699.
5 hp and 7.5 hp air-cooled chillers come standard with 4” (101 mm) swivel casters.
Com- Process connections, in. NPT Dimensions Weights
pressor 1 2 no pump, 1 pump, no in inches c Dry d Ship. d Oper. d e
hp pump Pumps no tank tank,
to/from
height width depth lbs. lbs. lbs.
5.0 1.5/2.0 2.0 1.5” 1.5” / 2.0” 82.3” 34.0” 54.7” 872 1,047 1,205
7.5 1.5/2.0 2.0 1.5” 1.5” / 2.0” 82.3” 34.0” 54.7” 922 1,097 1,255
c To convert to cm, multiply by 2.54. Add to height dimension based on mounting options.
d Weight is for standard chiller. Some optional features will increase weight. Multiply lbs. by 0.454 to calculate Kg.
e Operating weight is with a full 20-gallon (76 liter) reservoir tank of water.










