Specification

Technical Information
Fixture*:
Basin area:
Bathing well 44″ (111.8 cm) x 25-3/4″ (65.4 cm)
Top area 51″ (129.5 cm) x 32-3/4″ (83.2 cm)
To overflow:
Water depth 15-1/4″ (38.7 cm)
Capacity 68 gal (257.4 L)
* Approximate measurements for comparison only.
Blower: V Hz A
3-speed 120 60 9.2
Required Electrical Service
Dedicated circuit required, protected with Class A
Ground-Fault Circuit-Interrupter (GFCI):
Blower 120 V, 15 A, 60 Hz
Installation Notes
Install this product according to the installation guide.
Blower is supplied with a grounding-type plug-in cord. Locate
the outlet within 24″ (61 cm) of the blower.
Blower service access is required.
Size the drain cutout to fit the drain assembly that will be
used.
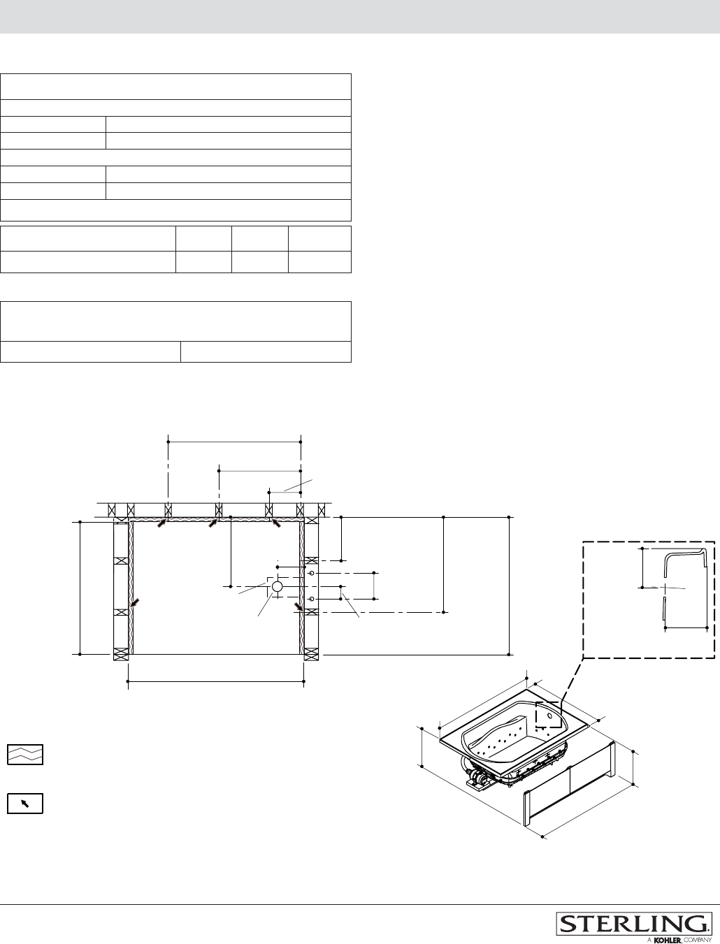
End stud positioning is critical if nailing-in flanges are to be
used.
Studs should be positioned roughly as shown for support clip
or roofing nail installation.
42"
(106.7 cm)
27"
(68.6 cm)
40-1/2"
(102.9 cm)
21"
(53.3 cm)
8-3/4"
(22.2 cm)
15"
(38.1 cm)
8"
(20.3 cm)
4"
(10.2 cm)
2" (5.1 cm) D. Drain
Drain Cutout
16" (40.6 cm)
44" (111.8 cm)
30" (76.2 cm)
60-1/8" (152.7 cm) Min
60-1/4" (153 cm) Max
60" (152.4 cm)
42" (106.7 cm)
60" (152.4 cm)
20-5/16"
(51.6 cm)
18-3/4"
(47.6 cm)
Recommended Support
Clip or Roofing Nail
Location (5 Total)
Ledger Strip Locations
3-1/2" (8.9 cm)
3-5/16"
(8.4 cm)
Overflow Detail
Product Diagram
LAWSONTM
LAWSONTM 60″ (152.4 cm) x 42″ (106.7 cm) DROP-IN AIR MASSAGE BATH
Page2of2
1139490-4-
B


