Installation Guide

Diagrama de instalación
ABCDE FG
76261100 32″ (81,3
cm)
32-1/4″
(81,9 cm)
16″ (40,6
cm)
10″ (25,4
cm)
22″ (55,9
cm)
31-1/4″
(79,4 cm)
30-1/4″
(76,8 cm)
76271100 36″ (91,4
cm)
36-1/4″
(92,1 cm)
18″ (45,7
cm)
12″ (30,5
cm)
24″ (61 cm) 35-1/4″
(89,5 cm)
34-1/4″ (87
cm)
76281100 42″ (106,7
cm)
42-1/4″
(107,3 cm)
21″ (53,3
cm)
15″ (38,1
cm)
27″ (68,6
cm)
41-1/4″
(104,8 cm)
40-1/4″
(102,2 cm)
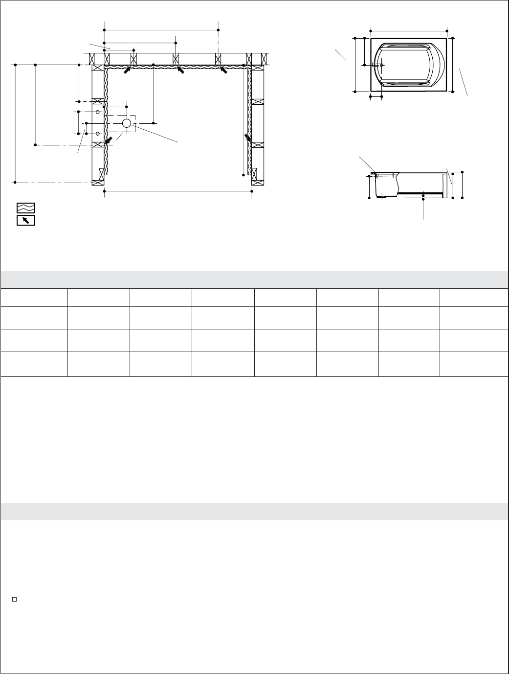
¡IMPORTANTE! Todas las dimensiones son nominales. La tolerancia para la abertura entre los postes es
de +1/8″ (3 mm)/-0. Mida con cuidado el producto antes de determinar las dimensiones del encajonado.
Quizás sea necesario colocar cuñas entre la estructura de postes de madera y la unidad. Si se requiere una
pared resistente al fuego, las dimensiones del diagrama de instalación deberán aumentar según el grosor
del material resistente al fuego. Las dimensiones de abertura entre los postes se deben medir por el lado
expuesto del material de la pared. Las dimensiones del diagrama de instalación son cruciales para una
correcta instalación. Construya la estructura y coloque las tuberías con precisión.
En caso de instalar una puerta de ducha con esta bañera de hidromasaje, consulte las instrucciones de
instalación del fabricante de la puerta para cualquier consideración especial de la estructura de postes de
madera.
1. Construcción nueva de la estructura de postes de madera
NOTA: Consulte la sección ″Diagrama de instalación″ para obtener las dimensiones.
¡IMPORTANTE! Un subpiso debe soportar la bañera de hidromasaje. No instale directamente en vigas
expuestas en el suelo.
Estipulaciones para la estructura de postes de madera
El subpiso debe estar instalado. Al colocar la bañera de hidromasaje se debe dejar espacio para el
desagüe a través de las vigas del piso o losas así como facilitar la instalación de plomería.
¡IMPORTANTE! Para esta instalación no se recomiendan accesorios que requieran refuerzo o soporte.
17"
(43,2 cm)
8-3/4"
(22,2 cm)
C
G
F
E
8"
(20,3 cm)
4" (10,2 cm)
Desagüe de
2" (5,1 cm) D.
60-1/8" (152,7 cm) Mín
60-1/4" (153 cm) Máx
Abertura del
desagüe
Línea central del
rebosadero
16" (40,6 cm)
44" (111,8 cm)
30" (76,2 cm)
60" (152,4 cm)
A
8-3/4"
(22,2 cm)
18-3/4" (47,6 cm)
20-5/16"
(51,6 cm)
3/16"
(5 mm)
C
B
Lugar recomendado para el clip de sujeción o clavo de techar (5 en total)
Los diagramas ilustrados son representativos y sólo deben utilizarse con la tabla que se muestra abajo.
Su producto puede diferir de las ilustraciones.
Con faldón
Sin faldón
Larguero
D
1105582-2-B Español-4 Sterling










