Installation Guide

Plan de raccordement
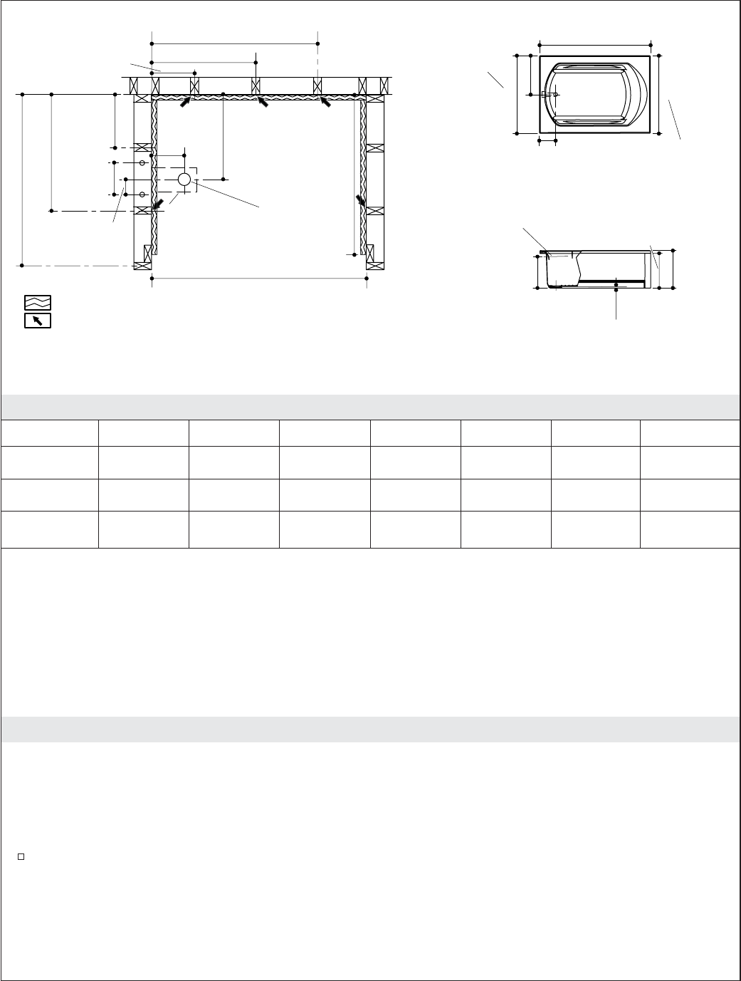
ABCDE FG
76261100 32″ (81,3
cm)
32-1/4″
(81,9 cm)
16″ (40,6
cm)
10″ (25,4
cm)
22″ (55,9
cm)
31-1/4″
(79,4 cm)
30-1/4″
(76,8 cm)
76271100 36″ (91,4
cm)
36-1/4″
(92,1 cm)
18″ (45,7
cm)
12″ (30,5
cm)
24″ (61 cm) 35-1/4″
(89,5 cm)
34-1/4″ (87
cm)
76281100 42″ (106,7
cm)
42-1/4″
(107,3 cm)
21″ (53,3
cm)
15″ (38,1
cm)
27″ (68,6
cm)
41-1/4″
(104,8 cm)
40-1/4″
(102,2 cm)
IMPORTANT! Toutes les dimensions sont nominales. La tolérance de l’ouverture du montant est de +1/8″
(3 mm)/-0. Mesurer soigneusement le dispositif avant de déterminer la taille de son logement. Un calage
entre le cadre du montant et l’appareil sanitaire pourrait être nécessaire. Si un pare-feu est requis, les
dimensions de raccordement devront augmenter en fonction de l’épaisseur du matériau du pare-feu. Les
dimensions d’ouverture des montants doivent être mesurées vers le côté exposé du matériau du mur. Les
dimensions fournies dans le plan du raccordement sont cruciales pour une bonne installation. Construire
le cadre et la plomberie avec exactitude.
En cas d’installation de cette baignoire à hydromassage avec porte de douche, consulter les instructions du
fabricant de la porte de douche pour toutes spécifications particulières du cadrage.
1. Nouvelle construction du cadrage
REMARQUE: Se référer à la section ″plan de raccordement″ pour les dimensions.
IMPORTANT! La baignoire à hydromassage doit être supportée par un sous-plancher. Ne pas installer
directement sur des poutrelles de plancher ouvertes.
Provisions cadrage
Un plancher doit être installé. La baignoire à hydromassage doit être positionnée de manière à
permettre le drainage à travers les charpentes exposées ou dalles et pour faciliter l’installation de la
plomberie.
IMPORTANT! Les accessoires qui requièrent un renfort ou un support ne sont pas recommandés pour
cette installation.
17"
(43,2 cm)
8-3/4"
(22,2 cm)
C
G
F
E
8"
(20,3 cm)
4" (10,2 cm)
Drain de
Ø 2" (5,1 cm)
60-1/8" (152,7 cm) Min.
60-1/4" (153 cm) Max.
Découpe
du drain
Ligne centrale
du trop plein
16" (40,6 cm)
44" (111,8 cm)
30" (76,2 cm)
60" (152,4 cm)
A
8-3/4"
(22,2 cm)
18-3/4" (47,6 cm)
20-5/16"
(51,6 cm)
3/16"
(5 mm)
C
B
Emplacement recommandé pour le clip de support ou clou pour toiture (5 Total)
Les diagrammes montrés sont à titre représentatif et pour utilisation avec le tableau ci-dessous uniquement.
L'appareil peut apparaître différent des illustrations.
Avec bandeau
Sans bandeau
Lambourde de plancher
D
Sterling Français-4 1105582-2-B










