Installation Guide

Roughing-In
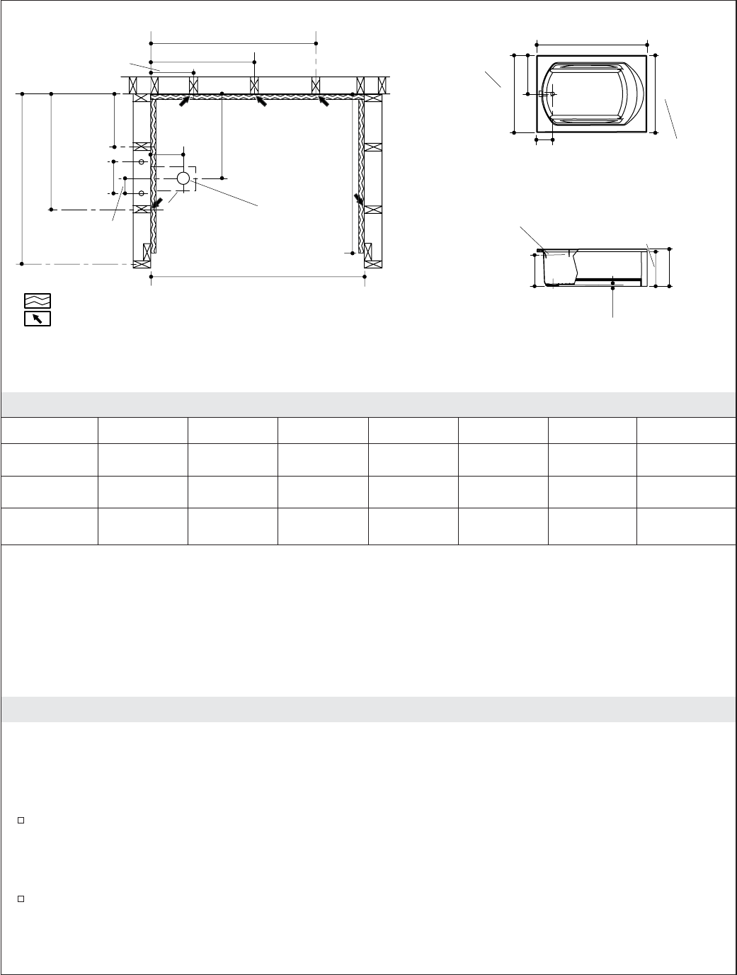
ABCDE FG
76261100 32″ (81.3
cm)
32-1/4″
(81.9 cm)
16″ (40.6
cm)
10″ (25.4
cm)
22″ (55.9
cm)
31-1/4″
(79.4 cm)
30-1/4″
(76.8 cm)
76271100 36″ (91.4
cm)
36-1/4″
(92.1 cm)
18″ (45.7
cm)
12″ (30.5
cm)
24″ (61 cm) 35-1/4″
(89.5 cm)
34-1/4″ (87
cm)
76281100 42″ (106.7
cm)
42-1/4″
(107.3 cm)
21″ (53.3
cm)
15″ (38.1
cm)
27″ (68.6
cm)
41-1/4″
(104.8 cm)
40-1/4″
(102.2 cm)
IMPORTANT! All dimensions are nominal. The stud opening tolerance is +1/8″ (3 mm)/-0. Carefully
measure your fixture before determining enclosure size. Some shimming between the stud frame and the
fixture may be required. If a firewall is required, rough-in dimensions will have to increase according to
the thickness of the firewall material. Stud opening dimensions must be measured toward the exposed
side of the wall material. Dimensions given in the rough-in information are crucial for proper installation.
Construct the framing and plumbing accurately.
If installing this whirlpool with a shower door, refer to the shower door manufacturer’s instructions for any
special framing considerations.
1. New Framing Construction
NOTE: Refer to the ″Roughing-In″ section for dimensions.
IMPORTANT! The whirlpool must be supported by a subfloor. Do not install directly to open floor joists.
Framing Provisions
A subfloor must be installed. The whirlpool must be positioned to allow clearance for drainage
through the floor joists or slab and to allow convenient plumbing installation.
IMPORTANT! Accessories that require backing or support are not recommended for this installation.
If installing this unit with a shower door, refer to the shower door manufacturer’s instructions for
any special framing considerations. It may be appropriate to add studs for pivot shower door
support.
17"
(43.2 cm)
8-3/4"
(22.2 cm)
C
G
F
E
8"
(20.3 cm)
4" (10.2 cm)
2" (5.1 cm)
D. Drain
60-1/8" (152.7 cm) Min
60-1/4" (153 cm) Max
Drain Cutout
Overflow Centerline
16" (40.6 cm)
44" (111.8 cm)
30" (76.2 cm)
60" (152.4 cm)
A
8-3/4"
(22.2 cm)
18-3/4" (47.6 cm)
20-5/16"
(51.6 cm)
3/16"
(5 mm)
C
B
Recommended Support Clip or Roofing Nail Location (5 Total)
Diagrams shown are representative and for use with the table below only. Your fixture may
appear different from the illustrations.
With Apron
Without Apron
Ledger Strip
D
Sterling 5 1105582-2-B










