Dimensions Guide

Technical Information
Model Door maximum width Door maximum
height
72100100
72200100
32-5/8″ (82.9 cm) 70-1/2″ (179.1 cm)
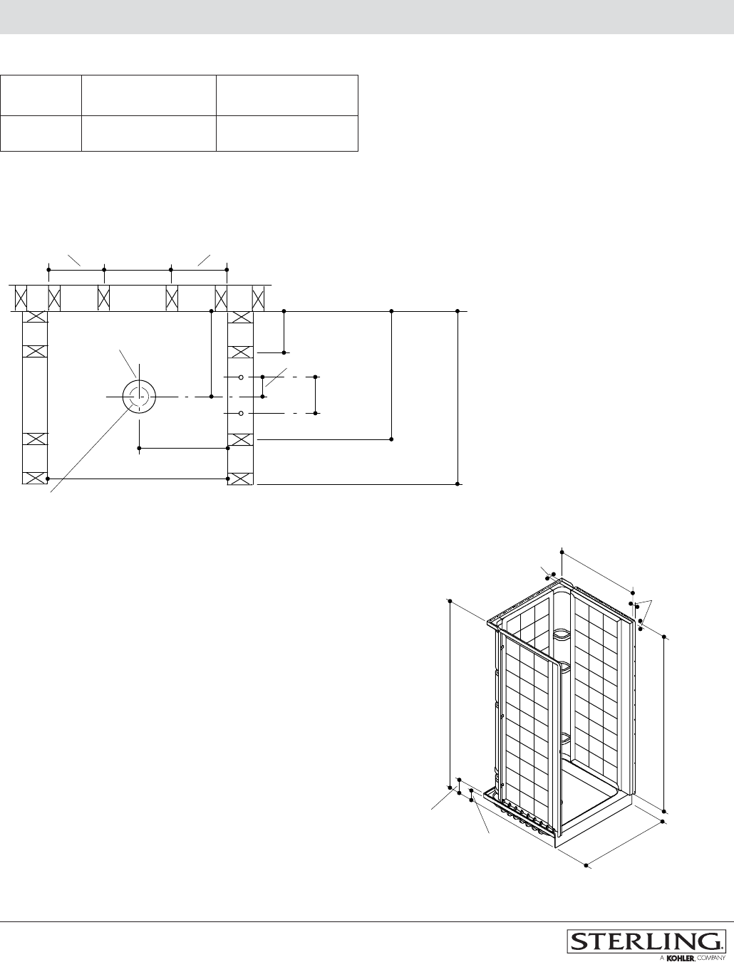
Installation Notes
Install this product according to the installation guide.
Size the drain cutout to fit the drain assembly that will be
used.
Double studding is recommended for pivot shower door
installations.
Studs should be positioned roughly as shown.
Both tile and curve wall surrounds share the same
dimensions.
10" (25.4 cm)
4" (10.2 cm)
10"
(25.4 cm)
16"
(40.6 cm)
10"
(25.4 cm)
15-13/16"
(40.2 cm)
4-1/2" (11.4 cm) D.
Drain Cutout
18"
(45.7 cm)
36-1/8" (91.8 cm) Min
36-1/4" (92.1 cm) Max
3-5/16"
(8.4 cm) D.
Drain Hole
8"
(20.3 cm)
26"
(66 cm)
35-1/4" (89.5 cm)
1-5/8" (4.1 cm)
at Midpoint
34"
(86.4 cm)
1-1/4"
(3.2 cm)
72-1/2"
(184.2 cm)
77"
(195.6 cm)
5-1/2"
(14 cm)
4-1/2"
(11.4 cm)
36"
(91.4 cm)
Product Diagram
ENSEMBLETM
ENSEMBLETM 36″ (91.4 cm) SHOWER BASE AND WALL SURROUND
Page2of2
1017261-4-
H


