Installation Guide

20
After painting, apply 100%
silicone sealant where the unit
contacts the finished wall.
Après avoir peint, appliquer du
mastic 100% silicone aux points
de contact avec le mur fini.
Después de pintar, aplique
sellador 100% de silicona donde
la unidad hace contacto con la
pared acabada.
Apply sealant.
Appliquer du
mastic d'étanchéité.
Aplique sellador.
19
Install the faucet trim and
accessories, and seal where they
contact the wall panels.
Poser la garniture de robinet et
les accessoires et appliquer du
mastic d'étanchéité à leurs points
de contact avec les panneaux
muraux.
Instale la guarnición de grifería
y los accesorios, y selle donde
hagan contacto con los paneles
de pared.
800.638.8556
HomeInnovation.com
The manufacturer represents that the product to which
this label is affixed (a) duplicates samples independently
tested by Home Innovation Research Labs and certified
to conform to the requirements of HUD UM Bulletin No.
73a and CSA B45.5/IAPMO Z124 standard, and (b) has
been manufactured under quality controls deemed
appropriate by the m
anufacturer and periodically reviewed
by the certifier.
Kohler Co.
Huntsville, AL
6004
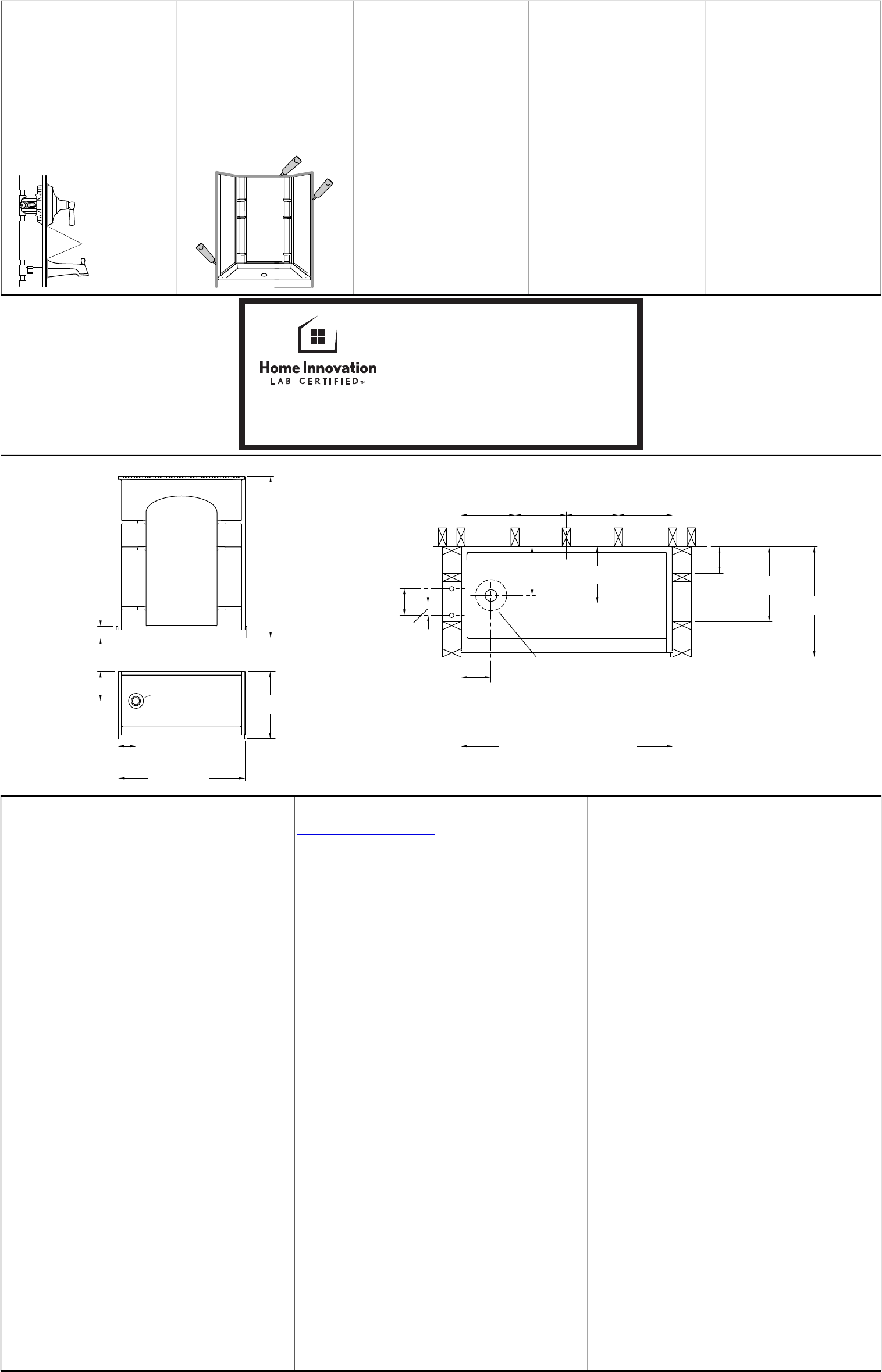
3-5/16" (84 mm)
Drain/Drain/Desagüe
Ø 4-1/2" (114 mm)
Drain Cutout
Découpe du drain
Ø 4-1/2" (114 mm)
Abertura para el desagüe
de Ø 4-1/2" (114 mm)
14"
(356 mm)
14"
(356 mm)
8" (203 mm)
4" (102 mm)
8-1/2"
(216 mm)
5" (127 mm)
76-1/2"
(1943 mm)
13-7/8"
(352 mm)
23"
(584 mm)
8-1/2"
(216 mm)
60" (1524 mm)
31-1/4"
(794 mm)
31-1/4"
(794 mm)
16"
(406 mm)
16"
(406 mm)
60-1/8" (1527 mm) Min/Min/Mín
60-1/4" (1530 mm) Max/Max/Máx
8-1/2"
(216 mm)
16-3/8"
(416 mm)
13-7/8"
(352 mm)
For care and cleaning and other information go to
www
.SterlingPlumbing.com.
WARRANTY
Bathing Fixtures (bathtubs and shower receptors) 10 YEARS LIMITED
RESIDENTIAL / 3 YEARS LIMITED COMMERCIAL
Kitchen and Utility Sinks LIFETIME LIMITED CONSUMER / 3 YEARS LIMITED
COMMERCIAL
Based on the classification specified above, STERLING bathing fixtures made of
solid Vikrell material are warranted to be free of manufacturing defects for 10 years
from the date of sale when fixtures are used in residential (owner-occupied)
buildings, or 3 years from the date of sale when fixtures are used in commercial
(hotels, motels, rental property) buildings.
Whirlpool baths are warranted to be free of manufacturing defects for the same
period except for the pump/motor assembly, which is warranted to be free of
manufacturing defects for 1 year from the date of sale.
Kitchen and utility sinks made of solid Vikrell material are warranted to be free of
manufacturing defects for as long as the original consumer purchaser owns his/her
home, or for 3 years from the date of sale when used in commercial (hotels, motels,
rental property) buildings.
Kohler Co. will, at its election, repair, rectify or replace a fixture when inspection
by Kohler Co. discloses any such defects occurring in normal usage within the
time period of coverage stated above. Kohler Co. is not responsible for removal
or installation costs where replacement is indicated. Damages due to improper
handling, installation or maintenance are not considered manufacturing defects
and are not covered by this warranty. This warranty is valid for the original,
consumer purchaser only.
To obtain warranty service, contact Sterling, either through your plumbing
contractor, home center, wholesaler or dealer, or by calling or writing Sterling,
Consumer Services, 444 Highland Drive, Kohler, Wisconsin 53044,
1-800-783-7546.
TO THE EXTENT PERMITTED BY LAW, ALL IMPLIED WARRANTIES
INCLUDING THOSE OF MERCHANTABILITY AND FITNESS FOR A
PARTICULAR PURPOSE ARE HEREBY DISCLAIMED. KOHLER CO. AND
SELLER HEREBY DISCLAIM ANY LIABILITY FOR SPECIAL, INCIDENTAL,
OR CONSEQUENTIAL DAMAGES. Some states/provinces do not allow limitations
on how long an implied warranty lasts, or the exclusion or limitation of special,
incidental or consequential damages, so these limitations and exclusions may not
apply to you. This warranty gives you specific legal rights.You may have other
rights which vary from state/province to state/province.
This is the exclusive written warranty for Kohler Co.
USA/Canada: 1-800-STERLING (1-800-783-7546)
Mexico: 001-877-680-1310
www.SterlingPlumbing.com
Para el cuidado y la limpieza y otra información visite:
www.SterlingPlumbing.com.
Pour obtenir de l'information sur l'entretien et le nettoyage
et de l'information supplémentaire, consulter le site:
www
.SterlingPlumbing.com.
GARANTÍA
Unidades de baño (bañeras y receptores de ducha) LIMITADA DE 10 AÑOS
PARA USO RESIDENCIAL / LIMITADA DE 3 AÑOS PARA USO COMERCIAL
Fregaderos de cocina y de servicio LIMITADA DE POR VIDA PARA EL
CONSUMIDOR / LIMITADA DE 3 AÑOS PARA USO COMERCIAL
De acuerdo a la clasificación arriba descrita, se garantiza que las unidades de
baño STERLING hechos de material sólido Vikrell están libres de defectos de
fabricación por un periodo de 10 años a partir de la fecha de venta, en el caso de
unidades de uso residencial (ocupada por el propietario), o por un periodo de 3
años a partir de la fecha de venta, en el caso de unidades de uso comercial
(hoteles, moteles y propiedades de alquiler).
Se garantiza que las bañeras de hidromasaje están libres de defectos de
fabricación por el mismo periodo de tiempo, excepto el montaje de bomba/motor,
el cual se garantiza que está libre de defectos de fabricación durante 1 año a
partir de la fecha de venta.
Se garantiza que los fregaderos de cocina y de servicio hechos de material sólido
de Vikrell estarán libres de defectos de fabricación mientras el comprador
consumidor original sea propietario de su casa, o por 3 años a partir de la fecha
de venta, en el caso de unidades de uso comercial (hoteles, moteles, propiedades
para alquiler).
Kohler Co., a su criterio, reparará, rectificará o reemplazará una unidad en los
casos en que la inspección realizada por Kohler Co. determine que dichos defectos
ocurrieron durante el uso normal dentro del periodo de cobertura indicado
anteriormente. Kohler Co. no se hace responsable de costos de desinstalación
o instalación donde se reemplace el producto. Los daños que resulten de errores
de manejo, instalación o mantenimiento inadecuado no serán considerados como
defectos de fabricación y no estarán cubiertos por esta garantía. Esta garantía
es válida únicamente para el comprador consumidor original.
Para obtener el servicio de garantía, comuníquese con Sterling, a través de su
contratista de plomería, centro de remodelación, mayorista o distribuidor, o llame
o escriba a Sterling, Consumer Services, 444 Highland Drive, Kohler, Wisconsin
53044, 1-800-783-7546.
EN LA MEDIDA QUE LA LEY LO PERMITA, POR MEDIO DE LA PRESENTE
SE DESCARGA RESPONSABILIDAD DE TODA GARANTÍA IMPLÍCITA,
INCLUIDA LA DE COMERCIALIZACIÓN E IDONEIDAD PARA UN USO
DETERMINADO. KOHLER CO.Y EL VENDEDOR POR MEDIO DE LA
PRESENTE DESCARGAN TODA RESPONSABILIDAD POR CONCEPTO DE
DAÑOS PARTICULARES, INCIDENTALES O INDIRECTOS. Algunos
estados/provincias no permiten limitaciones en cuanto a la duración de una
garantía implícita o a la exclusión o limitación de daños particulares, incidentales
o indirectos, por lo que estas limitaciones y exclusiones pueden no aplicar a su
caso. Esta garantía le otorga ciertos derechos legales específicos. Además, usted
puede tener otros derechos que varían de estado a estado y provincia a provincia.
Esta es la garantía exclusiva por escrito de Kohler Co.
GARANTIE
Meubles de bain (baignoires et receveurs de douche) GARANTIE
RÉSIDENTIELLE LIMITÉE DE 10 ANS / GARANTIE COMMERCIALE LIMITÉE
DE 3 ANS
Éviers de cuisine et utilitaires GARANTIE CONSOMMATEUR LIMITÉE À VIE
/ GARANTIE COMMERCIALE LIMITÉE 3 ANS
En fonction de la classification spécifiée ci-dessus, les appareils sanitaires
STERLING en Vikrell sont garantis contre tout défaut de fabrication pendant 10
ans après la date d'achat lors d'une utilisation résidentielle (maison occupée par
le propriétaire), ou pendant 3 ans après la date d'achat si utilisé dans un
établissement commercial (hôtel, motel et maisons de location).
Les baignoires d'hydromassage sont garanties contre tout vice de fabrication pour
la même période à l'exception du groupe moteur/pompe, qui est garanti contre
tout vice de fabrication pendant 1 an à partir de la date d'achat.
Les éviers de cuisine et utilitaires en matériau Vikrell sont garantis contre tout
vice de fabrication aussi longtemps que l'acquéreur d'origine est propriétaire de
son domicile, ou pour une durée de trois ans à partir de la date d'achat lorsqu'ils
sont utilisés dans des établissements commerciaux (hôtels, motels, maisons de
location).
Si un vice est découvert au cours d'une utilisation normale, Kohler Co. choisira,
à sa discrétion, la réparation, le remplacement ou la rectification de l'appareil,
après inspection par Kohler Co. durant la période susmentionnée. Si le
remplacement est nécessaire, Kohler Co. n'est pas responsable des frais
d'enlèvement ou d'installation. Les dommages causés par une manipulation
incorrecte, une installation erronée ou un entretien non adéquat ne sont pas
considérés comme étant des vices de fabrication, et ne sont pas couverts par la
présente garantie. Cette garantie est valide pour l'acquéreur d'origine uniquement.
Pour obtenir le service de garantie, contacter Sterling, par l'intermédiaire du
plombier, centre de rénovation, revendeur ou distributeur ou bien par écrit à
l'adresse suivante Sterling, Consumer Services, 444 Highland Drive, Kohler,
Wisconsin 53044, 1-800-783-7546.
DANS LA MESURE PRÉVUE PAR LA LOI, TOUTES LES GARANTIES
TACITES,Y COMPRIS CELLES DE COMMERCIALITÉ ET D'ADAPTATION À
UN USAGE PARTICULIER, SONT PAR LA PRÉSENTE REJETÉES. KOHLER
CO. ET LE REVENDEUR DÉCLINENT PAR LES PRÉSENTES TOUTE
RESPONSABILITÉ EN CAS DE DOMMAGES PARTICULIERS, ACCESSOIRES
OU INDIRECTS. Certains états et provinces ne permettent pas de limite sur la
durée de la garantie tacite, ni l'exclusion ou la limite des dommages particuliers,
accessoires ou indirects, et, par conséquent, lesdites limites et exclusions peuvent
ne pas s'appliquer à votre cas. Cette garantie vous donne des droits juridiques
particuliers. Vous pouvez également avoir d'autres droits qui varient d'un État ou
d'une province à l'autre.
Ceci constitue la garantie écrite exclusive de Kohler Co.
1184743-2-B © 2014 Kohler Co.


