Specification Sheet

Technical Information
Fixture*:
Bathing well:
Basin area,
bottom
42″ (1067 mm) x 20″ (508 mm)
Basin area,
top
54″ (1372 mm) x 26″ (660 mm)
To overflow:
Water depth 13-3/4″ (349 mm)
Capacity 55 gals (208.2 L)
* Approximate measurements for comparison only.
Model door maximum
width
door maximum
height
71320116
71320126
57-11/16″ (1465 mm) 56-3/4″ (1441 mm)
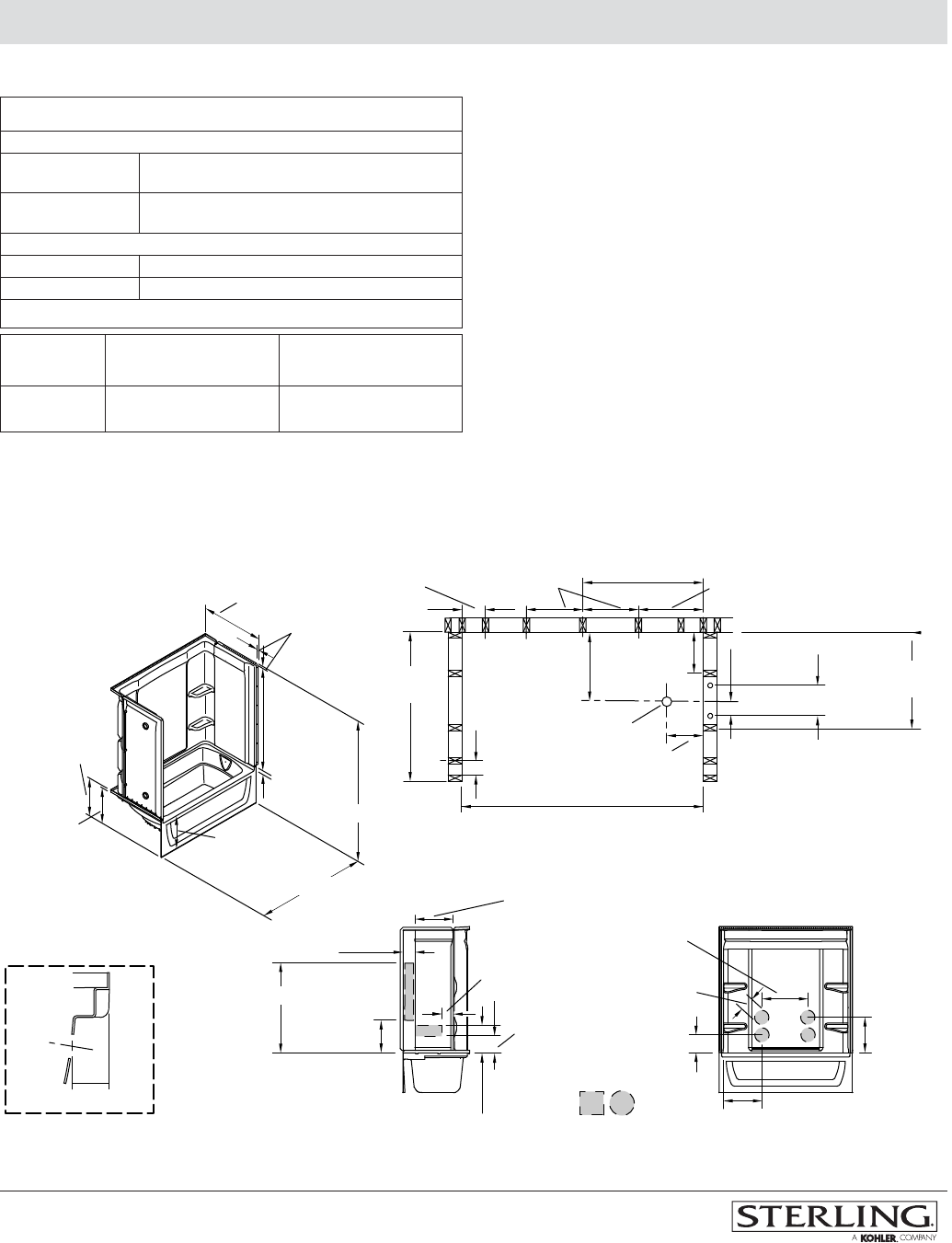
Installation Notes
Install this product according to the installation guide.
Size the drain cutout to fit the drain assembly that will be
used.
Studs should be positioned as shown.
2-7/8" (73 mm)
15-1/2"
(394 mm)
8-1/2"
(216 mm)
8-1/2"
(216 mm)
22-1/2"
(572 mm)
33-1/4"
(845 mm)
60-1/8" (1527 mm) Min
60-1/4" (1530 mm) Max
33-1/4"
(845 mm)
1-1/4"
(32 mm)
55"
(1397 mm)
76-1/4" (1937 mm)
60" (1524 mm)
18"
(457 mm)
21"
(533 mm)
20"
(508 mm)
Overflow Detail
2"
(51 mm)
3-1/2"
(89 mm)
4"
(102 mm)
30" (762 mm)
8" (203 mm)
16" (406 mm)
14"
(356 mm)
6" (152 mm)
(Typical)
Ø 2"
(51 mm) Drain
71320126
7"
(178 mm)
End Wall Back Wall
Backer board
38-1/2" (978 mm)
20"
(508 mm)
17-1/2"
(445 mm)
12-1/2"
(318 mm)
7-1/4"
(184 mm)
Ø 5"
(127 mm)
24" (610 mm)
Center-to-Center
16-1/2" (419 mm)
15"
(381 mm)
Width
of Flat
18-3/4"
(476 mm)
Product Diagram
ENSEMBLETM
ENSEMBLETM 32″ BATH AND MEDLEYTM WALL SURROUND WITH BACKER BOARDS
Page2of2
1214194-4-
A


