Specification Sheet

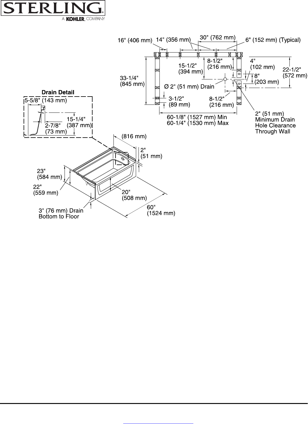
32-1/8"
Notes
Technical Information
Measure your actual product for roughing-in
details.
All product dimensions are nominal.
Alcove with FlangeInstallation:
Install this product according to the installation
guide.
RightDrain location:
42" x 20" (1067 mm x 508 mm)Basin area, bottom:
Double studding is recommended for pivot shower
door installations.
54" x 26" (1372 mm x 660 mm)Basin area, top:
13" (330 mm)Water depth:
Studs should be positioned roughly as shown.
51 gal (193.1 L)Water capacity:
57-11/16" (1465 mm)Door width required:
USA/Canada: 1-800-STERLING (1-800-783-7546)
Kohler Co. reserves the right to make revisions without notice to product specifications.
For the most current Specification Sheet, go to www.sterlingplumbing.com.
11-4-2015 02:43
Ensemble
™
32" (813 mm) AFD Bath
71121122


