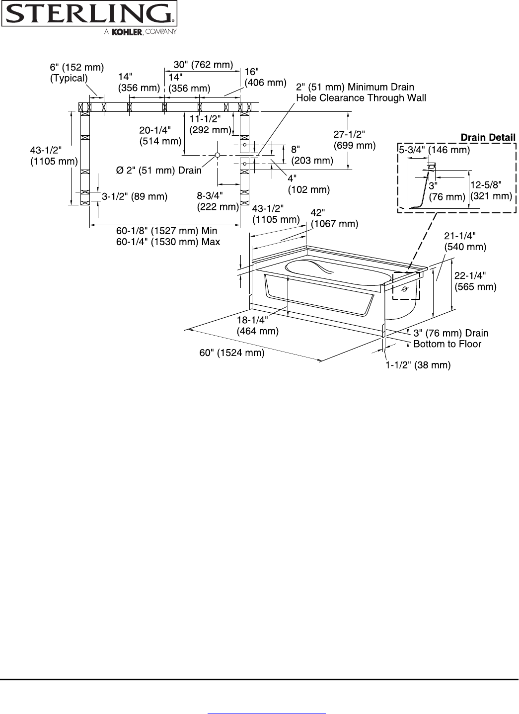
Specification Sheet

3" (76 mm)
Notes
Technical Information
Measure your actual product for roughing-in
details.
All product dimensions are nominal.
3-Wall AlcoveInstallation:
Install this product according to the installation
guide.
RightDrain location:
40" x 27" (1016 mm x 686 mm)Basin area, bottom:
Studs should be positioned roughly as shown.
52" x 35" (1321 mm x 889 mm)Basin area, top:
Double studding is recommended for pivot shower
door installations.
11" (279 mm)Water depth:
55 gal (208.2 L)Water capacity:
ADA compliant when installed to the specific
requirements of these regulations.
58-1/2" (1486 mm)Door width required:
USA/Canada: 1-800-STERLING (1-800-783-7546)
Kohler Co. reserves the right to make revisions without notice to product specifications.
For the most current Specification Sheet, go to www.sterlingplumbing.com.
11-1-2015 01:45
Ensemble
™
60" x 42" AFD Bath
71111122


