Specification Sheet

3-1/2" (89 mm)
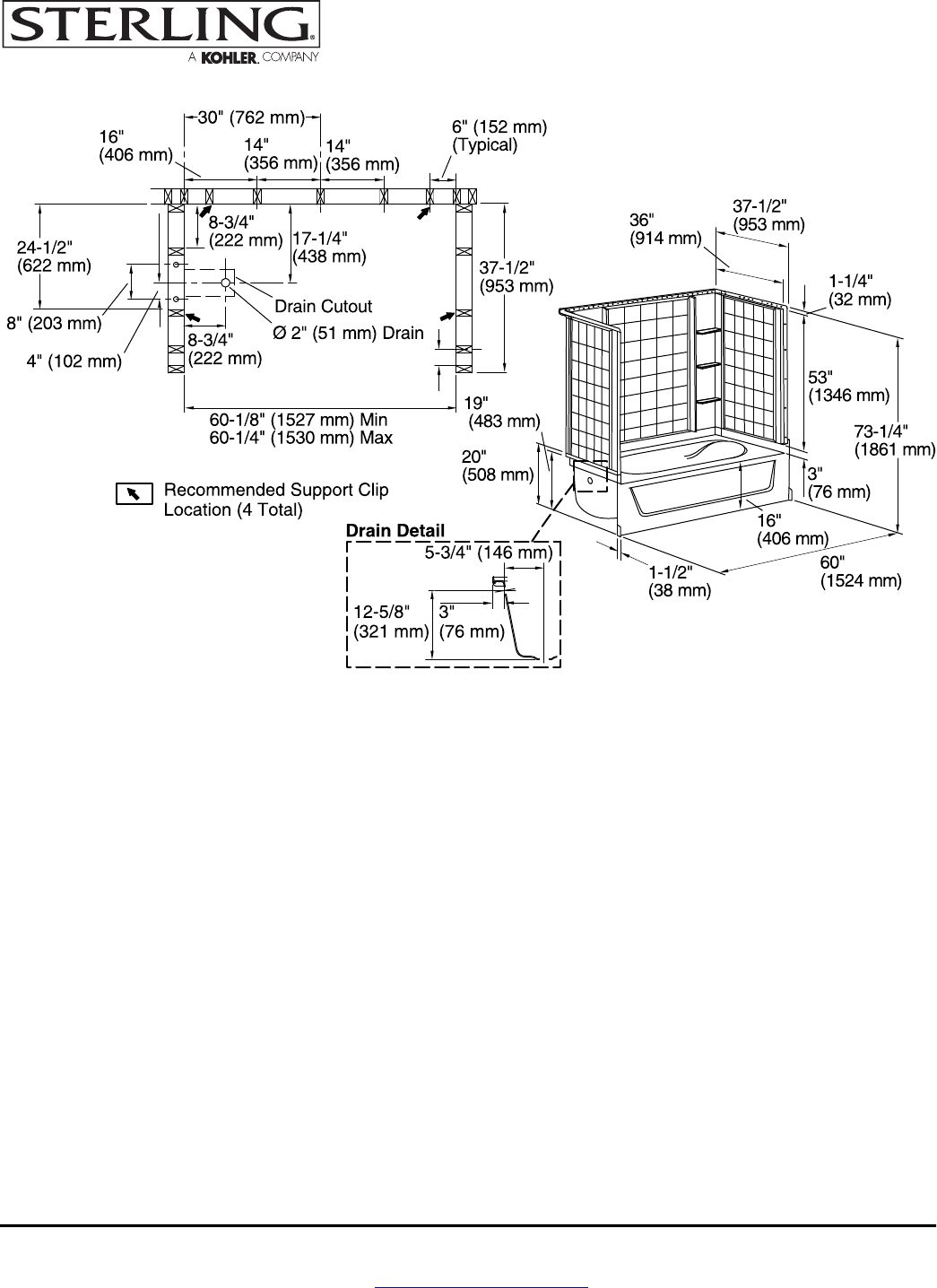
Notes
Technical Information
Measure your actual product for roughing-in
details.
All product dimensions are nominal.
3-Wall AlcoveInstallation:
Install this product according to the installation
guide.
LeftDrain location:
40" x 21" (1016 mm x 533 mm)Basin area, bottom:
Studs should be positioned roughly as shown.
52" x 29" (1321 mm x 737 mm)Basin area, top:
Double studding is recommended for pivot shower
door installations.
11" (279 mm)Water depth:
40 gal (151.4 L)Water capacity:
55-3/4" (1416 mm)Door height required:
58-1/2" (1486 mm)Door width required:
USA/Canada: 1-800-STERLING (1-800-783-7546)
Kohler Co. reserves the right to make revisions without notice to product specifications.
For the most current Specification Sheet, go to www.sterlingplumbing.com.
8-11-2015 01:59
Ensemble
™
60" x 36" Bath/Shower
71100110


