Dimensions Guide

Technical Information
Model door maximum
width*
door maximum
height
62040100 56-1/2″ (143.5 cm) 67″ (170.2 cm)
* NOTE: For shower door installation, use the STERLING
″SP″ fixture specific door only, due to draft angle on
shower surround walls.
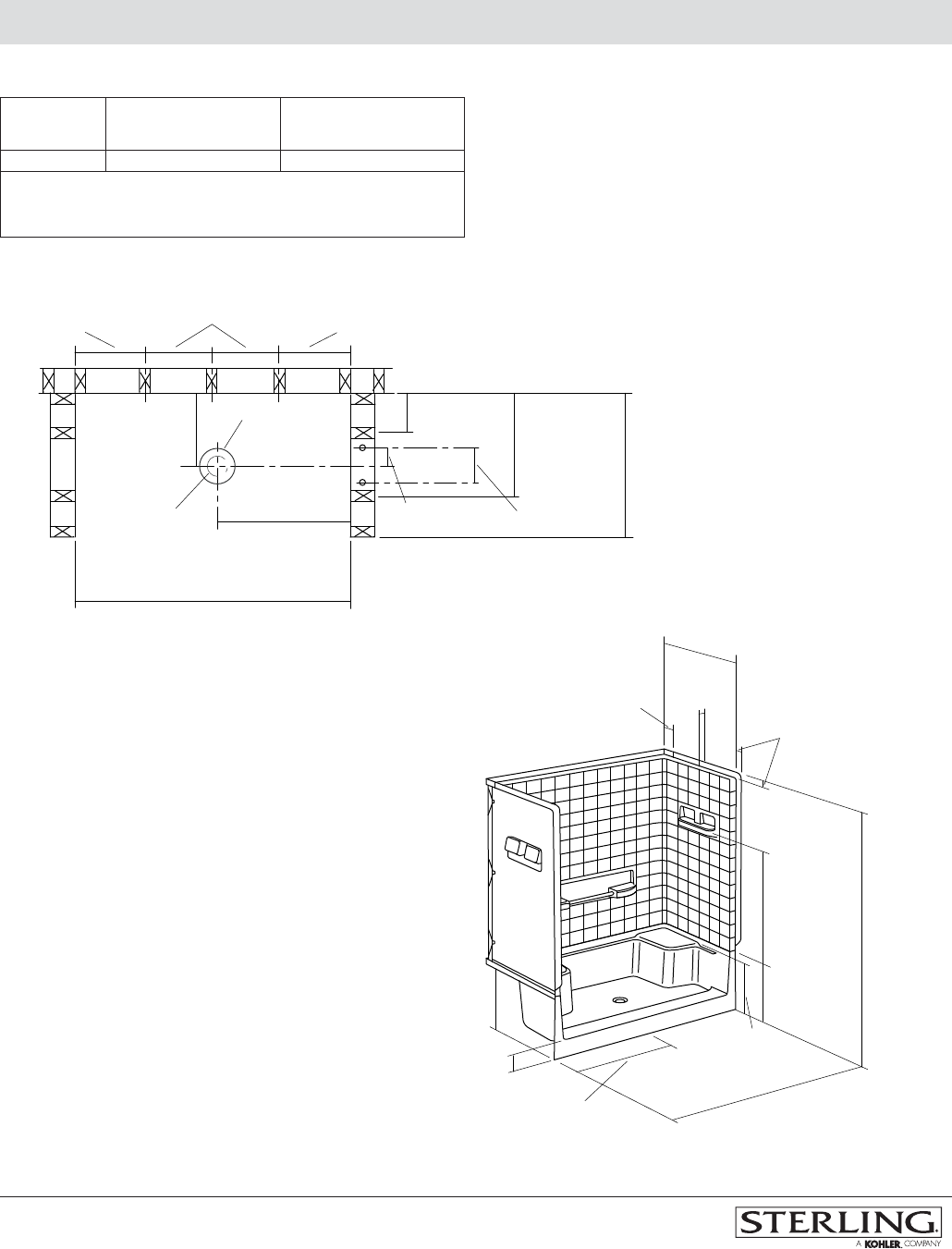
Installation Notes
Install this product according to the installation guide.
Size the drain cutout to fit the drain assembly that will be
used.
Double studding is recommended for pivot shower door
installations.
Studs should be positioned roughly as shown.
34" (86.4 cm)
62040100
8" (20.3 cm)
16"
(40.6 cm)
16"
(40.6 cm)
14" (35.6 cm)
16-1/4"
(41.3 cm)
4-1/2"
(11.4 cm) D.
Drain Cutout
30"
(76.2 cm)
60-1/8" (152.7 cm) Min
60-1/4" (153 cm) Max
3-5/16" D.
(8.4 cm)
Drain Hole
2-7/8"
(7.3 cm)
7-1/2"
(19.1 cm)
25-1/2"
(64.8 cm)
35-1/4"
(89.5 cm)
1-5/8"
(4.1 cm)
1-1/4"
(3.2 cm)
17-1/4"
(43.8 cm)
5"
(12.7 cm)
30"
(76.2 cm)
60"
(152.4 cm)
16-5/8"
(42.2 cm)
18"
(45.7 cm)
39"
(99.1 cm)
77-1/4"
(196.2 cm)
4" (10.2 cm)
Recommended Support Clip
Locations (5 total)
Product Diagram
ADVANTAGETM
ADVANTAGETM 60″ (152.4 cm) SEATED SHOWER BASE AND WALL SURROUND
Page2of2
1038467-4-
G


