Installation Guide

Diagrama de instalación
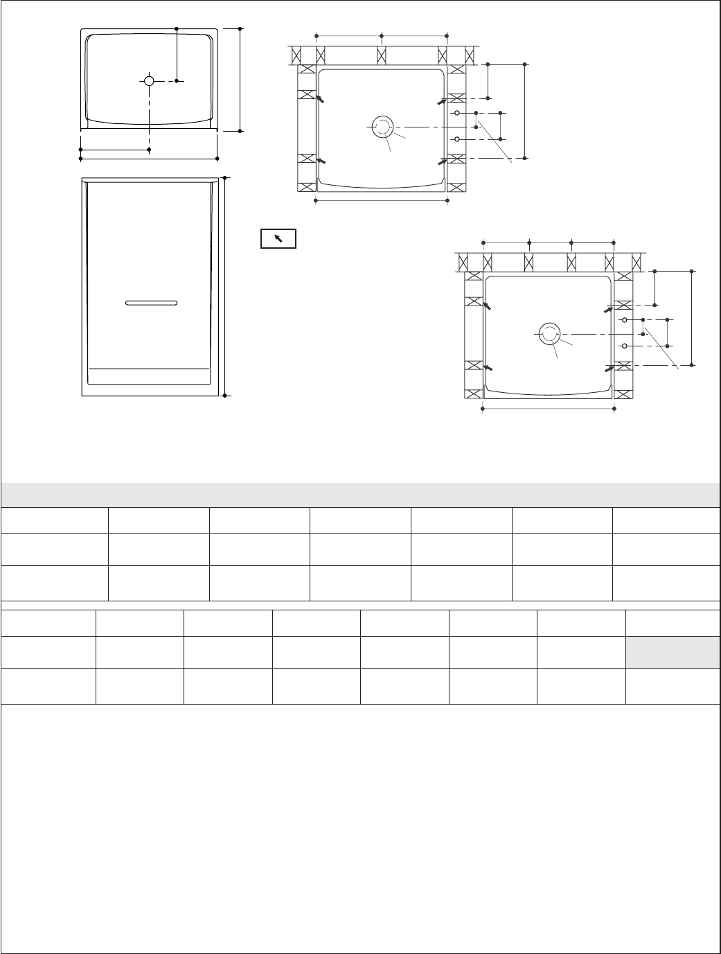
ABCDEF
62010100 32″
(81,3 cm)
16″
(40,6 cm)
35-1/4″
(89,5 cm)
16″
(40,6 cm)
73-1/4″
(186,1 cm)
16″
(40,6 cm)
62020100 36″
(91,4 cm)
18″
(45,7 cm)
35-1/4″
(89,5 cm)
16-1/4″
(41,3 cm)
73-1/4″
(186,1 cm)
10″
(25,4 cm)
GHJ KL MN
62010100 3-5/16″
(8,4 cm) D.
4-1/2″
(11,4 cm) D.
10″
(25,4 cm)
8″
(20,3 cm)
4″
(10,2 cm)
22-1/2″
(57,2 cm)
62020100 3-5/16″
(8,4 cm) D.
4-1/2″
(11,4 cm) D.
10″
(25,4 cm)
8″
(20,3 cm)
4″
(10,2 cm)
26″
(66 cm)
16″
(40,6 cm)
¡IMPORTANTE! Las dimensiones proporcionadas en el diagrama de instalación son críticas para una
correcta instalación. Construya la estructura y coloque las tuberías con precisión.
¡IMPORTANTE! Todas las dimensiones son nominales. La tolerancia de abertura entre los postes es 1/8″
(3 mm) y menos 0.
NOTA: Si se requiere una pared resistente al fuego, las dimensiones del diagrama de instalación se deben
aumentar según el espesor del material resistente al fuego. Las dimensiones de abertura entre los postes se
deben medir por el lado expuesto del material de la pared.
NOTA: Si va a instalar la ducha a una pared de mampostería, planifique la instalación de plomería.
Construya una pared de estructura separada, al menos a 6″ (15,2 cm) de la pared de mampostería.
El receptor y las paredes circundantes opcionales se pueden instalar directamente en la estructura de postes,
de paneles de yeso u otro material resistente al agua. Cuando se instale sobre paneles de yeso de la pared u
C
B
A
E
FF
G
H
J
A
K
L
M
FFN
G
H
J
A
K
L
M
D
Lugares recomendados
para los clavos de techar
(4 en total)
Los diagramas ilustrados son representativos y sólo deben utilizarse
con la tabla. Su producto puede diferir de las ilustraciones.
Sterling Español-3 1020187-2-F










